У Луцьку показали плани двох нових мікрорайонів. ДОКУМЕНТ
Луцька міська рада запрошує мешканців обласного центру до обговорення плану двох нових житлових мікрорайонів.
Так, квартал між вулицями Яровиця, Франка та Винниченка займатиме понад 26 тисяч квадратних метрів.
Варто зауважити, що житлова забудова розташується на 3,4 тисячі квадратних метрів, гаражі - тисячі.
Ще 2,4 тисячі квадратних метрів віддали на озеленення.
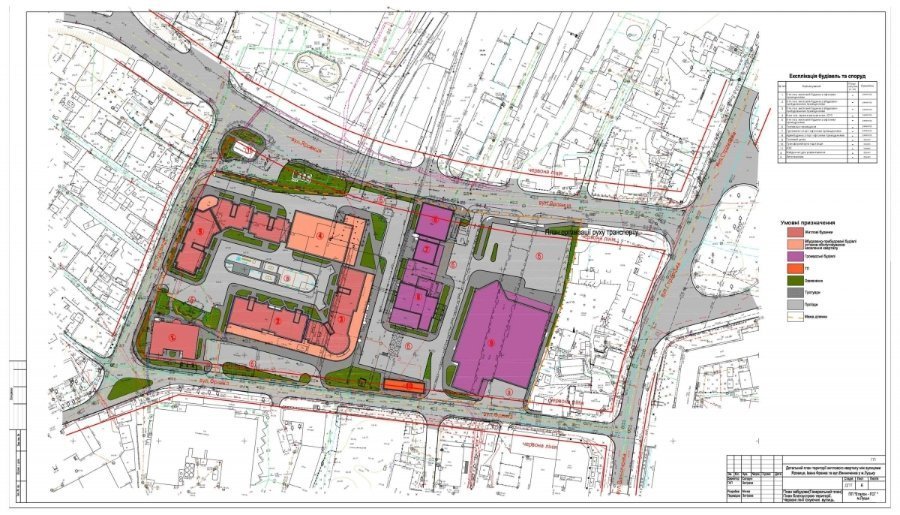
Квартал між вулицями Рівненська та Дубнівська займатиме більш як 32,6 тисячі квадратних метрів.
На площу території новобудов запланували 9,5 тисячі «квадратів», а озеленення - 4,1 тисячі.
Відповідно до плану щільність населення території новобудов району становитиме 95 людей на гектар.
У муніципалітеті запрошують лучан долучитися до обговорення документів.
«Просимо надсилати свої пропозиції та зауваження в управління містобудування та архітектури Луцької міської ради (вул. Б. Хмельницького, 21, каб. 302, тел. 72-00-94). З матеріалами детального плану території мікрорайону також можна ознайомитися в авторів його розробки (Волинська філія «Діпромісто», тел. 24-57-71, вул. Кременецька, 38)», - повідомили у прес-службі мерії.
Бажаєте дізнаватися головні новини Луцька та Волині першими? Приєднуйтеся до нашого каналу в Telegram!
Так, квартал між вулицями Яровиця, Франка та Винниченка займатиме понад 26 тисяч квадратних метрів.
Варто зауважити, що житлова забудова розташується на 3,4 тисячі квадратних метрів, гаражі - тисячі.
Ще 2,4 тисячі квадратних метрів віддали на озеленення.
Квартал між вулицями Рівненська та Дубнівська займатиме більш як 32,6 тисячі квадратних метрів.
На площу території новобудов запланували 9,5 тисячі «квадратів», а озеленення - 4,1 тисячі.
Відповідно до плану щільність населення території новобудов району становитиме 95 людей на гектар.
У муніципалітеті запрошують лучан долучитися до обговорення документів.
«Просимо надсилати свої пропозиції та зауваження в управління містобудування та архітектури Луцької міської ради (вул. Б. Хмельницького, 21, каб. 302, тел. 72-00-94). З матеріалами детального плану території мікрорайону також можна ознайомитися в авторів його розробки (Волинська філія «Діпромісто», тел. 24-57-71, вул. Кременецька, 38)», - повідомили у прес-службі мерії.
Бажаєте дізнаватися головні новини Луцька та Волині першими? Приєднуйтеся до нашого каналу в Telegram!
Якщо Ви зауважили помилку, виділіть її та натисніть Ctrl+Enter для того, щоб повідомити про це редакцію
Коментарі 0
Вибір редактора
Останні новини
Як на Волині відзначатимуть річницю Волинської трагедії: всі заходи
01 квітня, 2013, 13:19
У Луцьку показали плани двох нових мікрорайонів. ДОКУМЕНТ
01 квітня, 2013, 13:03
У ТОП-100 готелів України ‒ лише один із Луцька
01 квітня, 2013, 12:47
Управління юстиції через хабарі перевірить прокуратура
01 квітня, 2013, 12:46
