За скільки можна купити двокімнатну квартиру від «Інвестора»*
У четвертому та п’ятому будинках житлового комплексу «Супернова» від Будівельної компанії «Інвестор» продають двокімнатні квартири, площею 68 квадратних метрів.
Вартість одного квадратного метру становить 13 000 гривень. Втім, це мінімальна ціна, оскільки також на вартість за квадратний метр впливає і поверх, на якому розміщена квартира, - інформує Перший.
Яке планування квартири?
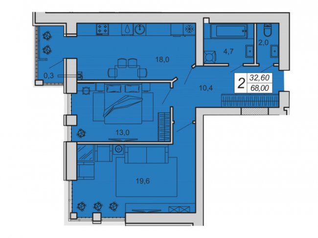
Загальна площа двокімнатної квартири у ЖК «Супернова» складає 68 квадратних метрів. На просторій кухні, площею 18 квадратних метрів, є вихід на балкон. Готувати на такій великій та добре освітленій кухні – одне задоволення.
Площа спальні складає 13 квадратних метрів. А найбільше простору –у третій кімнаті, яка ідеально підходить для того, аби приймати там гостей. Її площа - 19,6 квадратних метрів.
Ванна і туалет розділені. Ванна має 4,7 квадратних метрів, туалет – 2.
Які переваги квартири у ЖК «Супернова»?
У квартирах житлового комплексу – автономне опалення. Тут будуть встановлені двоконтурні газові котли та радіатори. Кожен власник квартири може регулювати подачу теплоносія та температуру повітря у квартирі. У кухні, ванні та в туалеті – підлога «з підігрівом».
У квартирах встановлюють енергоощадні металопластикові вікна, які добре утримують температуру всередині приміщення. Також встановлені металеві протизломні двері.
Які переваги ЖК «Супернова»?
ЖК «Супернова» розташований у районі вулиць Львівської та Потебні. Неподалік знаходиться великий ботанічний сад та річка Стир. Тут спокійно, немає звичного шуму міста. Втім, швидко доїхати до Луцька – не проблема, оскільки від житлового комплексу до центру міста – близько двох кілометрів.
Уся територія біля будинку викладена бруківкою, добре освітлена. Для кожного жителя квартири біля будинку передбачене власне паркомісце.
На території ЖК невдовзі встановлять просторий сучасний дитячий майданчик, який стане беззаперечною перевагою для сімей із дітьми. Інфраструктура задовольнить вимоги і найвибагливішого поціновувача комфорту, бо на території чи поблизу неї будуть мінісупермаркет, аптека, пральня, салон краси, кафе, спортзал. Коли це помножити ще й на зручне транспортне сполучення, то виходить, що про таке житло посеред міста Ви могли тільки мріяти.
Як оглянути квартиру?
Щоб оглянути житло від будівельної компанії «Інвестор», звертайтесь у відділ продажів за телефонами:
096 030 20 10
095 030 20 10
або за адресою:
вул. Цегельна, 28, м. Луцьк
вул. Коперника, 13 в, м. Луцьк
Facebook: facebook.com/investorlutsk/
Instagram: bud.investor
Бажаєте дізнаватися головні новини Луцька та Волині першими? Приєднуйтеся до нашого каналу в Telegram!
Вартість одного квадратного метру становить 13 000 гривень. Втім, це мінімальна ціна, оскільки також на вартість за квадратний метр впливає і поверх, на якому розміщена квартира, - інформує Перший.
Яке планування квартири?
Загальна площа двокімнатної квартири у ЖК «Супернова» складає 68 квадратних метрів. На просторій кухні, площею 18 квадратних метрів, є вихід на балкон. Готувати на такій великій та добре освітленій кухні – одне задоволення.
Площа спальні складає 13 квадратних метрів. А найбільше простору –у третій кімнаті, яка ідеально підходить для того, аби приймати там гостей. Її площа - 19,6 квадратних метрів.
Ванна і туалет розділені. Ванна має 4,7 квадратних метрів, туалет – 2.
Які переваги квартири у ЖК «Супернова»?
У квартирах житлового комплексу – автономне опалення. Тут будуть встановлені двоконтурні газові котли та радіатори. Кожен власник квартири може регулювати подачу теплоносія та температуру повітря у квартирі. У кухні, ванні та в туалеті – підлога «з підігрівом».
У квартирах встановлюють енергоощадні металопластикові вікна, які добре утримують температуру всередині приміщення. Також встановлені металеві протизломні двері.
Які переваги ЖК «Супернова»?
ЖК «Супернова» розташований у районі вулиць Львівської та Потебні. Неподалік знаходиться великий ботанічний сад та річка Стир. Тут спокійно, немає звичного шуму міста. Втім, швидко доїхати до Луцька – не проблема, оскільки від житлового комплексу до центру міста – близько двох кілометрів.
Уся територія біля будинку викладена бруківкою, добре освітлена. Для кожного жителя квартири біля будинку передбачене власне паркомісце.
На території ЖК невдовзі встановлять просторий сучасний дитячий майданчик, який стане беззаперечною перевагою для сімей із дітьми. Інфраструктура задовольнить вимоги і найвибагливішого поціновувача комфорту, бо на території чи поблизу неї будуть мінісупермаркет, аптека, пральня, салон краси, кафе, спортзал. Коли це помножити ще й на зручне транспортне сполучення, то виходить, що про таке житло посеред міста Ви могли тільки мріяти.
Як оглянути квартиру?
Щоб оглянути житло від будівельної компанії «Інвестор», звертайтесь у відділ продажів за телефонами:
096 030 20 10
095 030 20 10
або за адресою:
вул. Цегельна, 28, м. Луцьк
вул. Коперника, 13 в, м. Луцьк
Facebook: facebook.com/investorlutsk/
Instagram: bud.investor
Бажаєте дізнаватися головні новини Луцька та Волині першими? Приєднуйтеся до нашого каналу в Telegram!
Якщо Ви зауважили помилку, виділіть її та натисніть Ctrl+Enter для того, щоб повідомити про це редакцію
Коментарі 0
Останні новини
14-річну школярку жорстоко побили однолітки-дівчата
08 лютого, 2019, 10:43
За скільки можна купити двокімнатну квартиру від «Інвестора»*
08 лютого, 2019, 10:30
Сонце засліпило: у Луцьку водій врізався у автівку, яка «згубила» колесо. ФОТО
08 лютого, 2019, 10:23
У Луцьку на Дубнівській влупились три автівки. ФОТО
08 лютого, 2019, 09:58
