У розстрочку продають дворівневу квартиру в новому житловому комплексі. ФОТО*
Простора, продумана, чотирикімнатна, дворівнева: у новому житловому комплексі «Юпітер», що у Липинах, продається квартира, розташована на четвертому та п’ятому поверхах будинку.
Площа оселі – 109,34 м². Забудовник – Будівельна компанія «Інвестор» – пропонує кілька варіантів оплати, пише "Перший".
Ціна
Вартість квартири залежить від того, яку суму відразу готовий заплатити покупець.
Якщо клієнт готовий оплатити всю суму – вартість квадратного метра становитиме 12 000 гривень.
Якщо покупець потребує розтермінування – вартість квадратного метра становитиме 12 500 гривень.
Розтермінування можливе на увесь час до моменту здачі будинку в експлуатацію. Для «Юпітера» це вересень 2019 року.
Дивитися також інші ціни на квартири у «Юпітері»
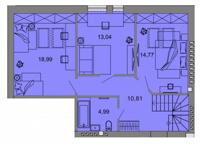
Планування
Перший поверх: вітальня (18,28 м²), кухня (9,68 м²), санвузол та коридор. Із кухні є вихід на лоджію площею 4,02 м².
На другому поверсі – три кімнати. Дві з них мансардні, третя – звичайна. Найбільша кімната має площу 18,99 м².
Також на другому поверсі є ще один санвузол та коридор.
Перейти, аби дізнатись, як можна красиво оформити мансарду в квартирі.
Переваги
Це просторе житло, яке ідеально підійде для сім’ї із дітьми. Можна зонувати квартиру таким чином, аби кожне покоління мало для себе затишний куточок. Наприклад, кімнати для дітей зробити на другому поверсі, а для дорослих – на першому.
На другому поверсі – дві мансардні кімнати. Нині таке житло вважається дуже стильним, адже є багато цікавих дизайнерських рішень, як його можна облаштувати.
Окрім цього, на кухні, у вітальні та в одній з кімнат другого поверху встановлені панорамні вікна. Завдяки їм у квартирі достатньо світла і візуально більше простору.
Також у квартирі автономне опалення. Всі вікна – енергозберігаючі. Будинок утеплений пінопластом та мінеральною ватою, а на даху є гідроізоляційна плівка. Оселя зберігатиме тепло, а стеля буде захищеною від несприятливих погодніх умов.
Дивитися фотозвіт з будівництва «Юпітера»
Місце
У житловому комплексі «Юпітер», що на межі села Липини та міста Луцька. Неподалік є зупинка громадського транспорту, а для власників автомобілів передбачили паркомісця. До центру міста можна доїхати за 10-15 хвилин.
Вся територія біля житлового комплексу гарно облаштована. Також є великий дитячий майданчик.
Дізнайтеся, як взяти кредит на квартиру у «Юпітері»
Контакти
Телефон відділу продажів:
096 030 20 10
Адреса:
м. Луцьк, вул. Коперника, 13 в.
Сайт: www.investor.lutsk.ua
Facebook: facebook.com/investorlutsk
Instagram: bud.investor
Бажаєте дізнаватися головні новини Луцька та Волині першими? Приєднуйтеся до нашого каналу в Telegram!
Площа оселі – 109,34 м². Забудовник – Будівельна компанія «Інвестор» – пропонує кілька варіантів оплати, пише "Перший".
Ціна
Вартість квартири залежить від того, яку суму відразу готовий заплатити покупець.
Якщо клієнт готовий оплатити всю суму – вартість квадратного метра становитиме 12 000 гривень.
Якщо покупець потребує розтермінування – вартість квадратного метра становитиме 12 500 гривень.
Розтермінування можливе на увесь час до моменту здачі будинку в експлуатацію. Для «Юпітера» це вересень 2019 року.
Дивитися також інші ціни на квартири у «Юпітері»
Планування
Перший поверх: вітальня (18,28 м²), кухня (9,68 м²), санвузол та коридор. Із кухні є вихід на лоджію площею 4,02 м².
На другому поверсі – три кімнати. Дві з них мансардні, третя – звичайна. Найбільша кімната має площу 18,99 м².
Також на другому поверсі є ще один санвузол та коридор.
Перейти, аби дізнатись, як можна красиво оформити мансарду в квартирі.
Переваги
Це просторе житло, яке ідеально підійде для сім’ї із дітьми. Можна зонувати квартиру таким чином, аби кожне покоління мало для себе затишний куточок. Наприклад, кімнати для дітей зробити на другому поверсі, а для дорослих – на першому.
На другому поверсі – дві мансардні кімнати. Нині таке житло вважається дуже стильним, адже є багато цікавих дизайнерських рішень, як його можна облаштувати.
Окрім цього, на кухні, у вітальні та в одній з кімнат другого поверху встановлені панорамні вікна. Завдяки їм у квартирі достатньо світла і візуально більше простору.
Також у квартирі автономне опалення. Всі вікна – енергозберігаючі. Будинок утеплений пінопластом та мінеральною ватою, а на даху є гідроізоляційна плівка. Оселя зберігатиме тепло, а стеля буде захищеною від несприятливих погодніх умов.
Дивитися фотозвіт з будівництва «Юпітера»
Місце
У житловому комплексі «Юпітер», що на межі села Липини та міста Луцька. Неподалік є зупинка громадського транспорту, а для власників автомобілів передбачили паркомісця. До центру міста можна доїхати за 10-15 хвилин.
Вся територія біля житлового комплексу гарно облаштована. Також є великий дитячий майданчик.
Дізнайтеся, як взяти кредит на квартиру у «Юпітері»
Контакти
Телефон відділу продажів:
096 030 20 10
Адреса:
м. Луцьк, вул. Коперника, 13 в.
Сайт: www.investor.lutsk.ua
Facebook: facebook.com/investorlutsk
Instagram: bud.investor
Бажаєте дізнаватися головні новини Луцька та Волині першими? Приєднуйтеся до нашого каналу в Telegram!
Якщо Ви зауважили помилку, виділіть її та натисніть Ctrl+Enter для того, щоб повідомити про це редакцію
Коментарі 0
Останні новини
У центрі Луцька запрацювала платна парковка. ФОТО
09 травня, 2019, 16:41
На Львівщині учень повідомив про замінування школи, щоб не писати контрольну
09 травня, 2019, 16:13
У розстрочку продають дворівневу квартиру в новому житловому комплексі. ФОТО*
09 травня, 2019, 15:52
У Луцьку відзначили День перемоги над нацизмом. ФОТО
09 травня, 2019, 15:29
Відома програма Lutsk Food Fest, який відбудеться 11–12 травня
09 травня, 2019, 14:41
