Продається дворівнева квартира під Луцьком: які переваги у двох поверхів*
Дворівневі квартири – як і приватний будинок, можна чітко розділити на окремі зони: на першому поверсі – так званий громадський простір: передпокій, вітальня, столова, а на другому – спальні, тобто житловий простір.
Площа таких квартир і їхнє розташування на окремих поверхах дозволяють вигадати безліч варіантів, як організувати різні зони, зробити креативний ремонт, подбати про кожного мешканця, щоб усім було зручно та у кожного були власні квадратні метри, - пише Перший.
У житловому комплексі «Юпітер», який у Липинах зводить Будівельна компанія «Інвестор», продається продумана дворівнева квартира площею 109,34 квадратів.
Пропонуємо на її прикладі розглянути, у чому переваги дворівневих квартир.
Які плюси двох поверхів?
Дворівневі квартири – великі, просторі. Тісно тут точно не буде нікому.
Є можливість поділити житло на окремі зони, відділивши житлову.
За потреби на верхньому поверсі можна організувати робочу зону: наприклад, майстерню, або ж просто кабінет чи бібліотеку, спортзал тощо.
Якщо в квартирі буде проживати дві сім’ї (наприклад, хтось із дітей одружився і вирішили, що будуть проживати спільно із батьками), можна організувати простір так, що кожна сім’я буде мати свій поверх.
У дворівневій квартирі є двоє вхідних дверей на кожному поверсі, що ще більше сприяє можливості «розвести» в квартирі дві сім’ї.
Два санвузли, що для великої сім’ї – не просто зручність, а необхідність.
Простір під сходами можна облаштувати як комору чи інше приміщення, або ж просто використати як креативний елемент інтер’єру.
Дворівневі квартири – це престижно, їх відносять до еліт-класу, а за ціною квадратного метра вони не дорожчі за звичайні.
Якщо вас також цікавлять інші квартири в «Юпітері» і хочете дізнатися ціни на них – тисніть на посилання.
Що особливого в квартирі ЖК «Юпітер»?
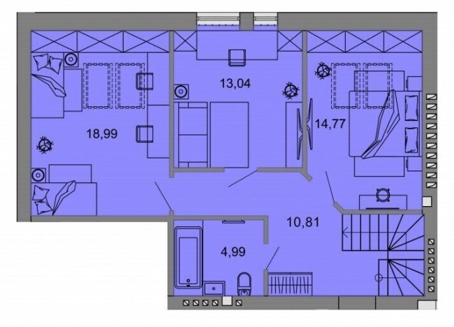
Перший поверх: вітальня (18,28 м²), кухня (9,68 м²), санвузол та коридор. Із кухні є вихід на лоджію площею 4,02 м².
На другому поверсі – три кімнати. Дві з них мансардні, третя – звичайна. Найбільша кімната має площу 18,99 м². Також на другому поверсі є ще один санвузол та коридор.
На другому поверсі – дві мансардні кімнати. Нині таке житло вважається дуже стильним, адже є багато цікавих дизайнерських рішень, як його можна облаштувати.
Окрім цього, на кухні, у вітальні та в одній з кімнат другого поверху встановлені панорамні вікна. Завдяки їм у квартирі достатньо світла і візуально більше простору.
Також у квартирі автономне опалення. Всі вікна – енергозберігаючі. Будинок утеплений пінопластом та мінеральною ватою, а на даху є гідроізоляційна плівка. Оселя зберігатиме тепло, а стеля буде захищеною від несприятливих погодніх умов.
Вартість квартири залежить від того, яку суму відразу готовий заплатити покупець.
Якщо клієнт платить 100% вартості – квадратний метр буде коштувати 12 000 гривень.
Якщо покупець потребує розтермінування – вартість квадратного метра буде 12 500 гривень (при 25% першого внеску), або – 12 250 гривень (при 50% першого внеску).
Розтермінування можливе на увесь час до моменту здачі будинку в експлуатацію. Для «Юпітера» це вересень 2019 року.
Хочете глянути, як виглядає «Юпітер»? Тисніть сюди і зможете переглянути багато фото із будмайданчика.
Де розташований «Юпітер»?
У житловому комплексі «Юпітер», що на межі села Липини та міста Луцька. Неподалік є зупинка громадського транспорту, а для власників автомобілів передбачили паркомісця. До центру міста можна доїхати за 10-15 хвилин.
Вся територія біля житлового комплексу гарно облаштована. Також є великий дитячий майданчик.
Контакти
Телефон відділу продажів:
096 030 20 10
Адреса:
м. Луцьк, вул. Коперника, 13 в.
Сайт: www.investor.lutsk.ua
Facebook: facebook.com/investorlutsk
Instagram: bud.investor
Бажаєте дізнаватися головні новини Луцька та Волині першими? Приєднуйтеся до нашого каналу в Telegram!
Площа таких квартир і їхнє розташування на окремих поверхах дозволяють вигадати безліч варіантів, як організувати різні зони, зробити креативний ремонт, подбати про кожного мешканця, щоб усім було зручно та у кожного були власні квадратні метри, - пише Перший.
У житловому комплексі «Юпітер», який у Липинах зводить Будівельна компанія «Інвестор», продається продумана дворівнева квартира площею 109,34 квадратів.
Пропонуємо на її прикладі розглянути, у чому переваги дворівневих квартир.
Які плюси двох поверхів?
Дворівневі квартири – великі, просторі. Тісно тут точно не буде нікому.
Є можливість поділити житло на окремі зони, відділивши житлову.
За потреби на верхньому поверсі можна організувати робочу зону: наприклад, майстерню, або ж просто кабінет чи бібліотеку, спортзал тощо.
Якщо в квартирі буде проживати дві сім’ї (наприклад, хтось із дітей одружився і вирішили, що будуть проживати спільно із батьками), можна організувати простір так, що кожна сім’я буде мати свій поверх.
У дворівневій квартирі є двоє вхідних дверей на кожному поверсі, що ще більше сприяє можливості «розвести» в квартирі дві сім’ї.
Два санвузли, що для великої сім’ї – не просто зручність, а необхідність.
Простір під сходами можна облаштувати як комору чи інше приміщення, або ж просто використати як креативний елемент інтер’єру.
Дворівневі квартири – це престижно, їх відносять до еліт-класу, а за ціною квадратного метра вони не дорожчі за звичайні.
Якщо вас також цікавлять інші квартири в «Юпітері» і хочете дізнатися ціни на них – тисніть на посилання.
Що особливого в квартирі ЖК «Юпітер»?
Перший поверх: вітальня (18,28 м²), кухня (9,68 м²), санвузол та коридор. Із кухні є вихід на лоджію площею 4,02 м².
На другому поверсі – три кімнати. Дві з них мансардні, третя – звичайна. Найбільша кімната має площу 18,99 м². Також на другому поверсі є ще один санвузол та коридор.
На другому поверсі – дві мансардні кімнати. Нині таке житло вважається дуже стильним, адже є багато цікавих дизайнерських рішень, як його можна облаштувати.
Окрім цього, на кухні, у вітальні та в одній з кімнат другого поверху встановлені панорамні вікна. Завдяки їм у квартирі достатньо світла і візуально більше простору.
Також у квартирі автономне опалення. Всі вікна – енергозберігаючі. Будинок утеплений пінопластом та мінеральною ватою, а на даху є гідроізоляційна плівка. Оселя зберігатиме тепло, а стеля буде захищеною від несприятливих погодніх умов.
Вартість квартири залежить від того, яку суму відразу готовий заплатити покупець.
Якщо клієнт платить 100% вартості – квадратний метр буде коштувати 12 000 гривень.
Якщо покупець потребує розтермінування – вартість квадратного метра буде 12 500 гривень (при 25% першого внеску), або – 12 250 гривень (при 50% першого внеску).
Розтермінування можливе на увесь час до моменту здачі будинку в експлуатацію. Для «Юпітера» це вересень 2019 року.
Хочете глянути, як виглядає «Юпітер»? Тисніть сюди і зможете переглянути багато фото із будмайданчика.
Де розташований «Юпітер»?
У житловому комплексі «Юпітер», що на межі села Липини та міста Луцька. Неподалік є зупинка громадського транспорту, а для власників автомобілів передбачили паркомісця. До центру міста можна доїхати за 10-15 хвилин.
Вся територія біля житлового комплексу гарно облаштована. Також є великий дитячий майданчик.
Контакти
Телефон відділу продажів:
096 030 20 10
Адреса:
м. Луцьк, вул. Коперника, 13 в.
Сайт: www.investor.lutsk.ua
Facebook: facebook.com/investorlutsk
Instagram: bud.investor
Бажаєте дізнаватися головні новини Луцька та Волині першими? Приєднуйтеся до нашого каналу в Telegram!
Якщо Ви зауважили помилку, виділіть її та натисніть Ctrl+Enter для того, щоб повідомити про це редакцію
Коментарі 0
Останні новини
У Польщі нагородили українця, який врятував людей у жахливій аварії. ВІДЕО
18 червня, 2019, 13:23
В апеляційному суді розглядали справу двох лучан, які взяли в заручники поліцейських
18 червня, 2019, 13:12
Усе, що потрібно знати про вибори: лучан кличуть на розмову з експертом
18 червня, 2019, 13:03
Продається дворівнева квартира під Луцьком: які переваги у двох поверхів*
18 червня, 2019, 13:03
Тіла чотирьох загиблих у Польщі завтра привезуть на Рівненщину
18 червня, 2019, 12:45




