У «Супернові» стартував продаж та бронювання квартир у «великому» будинку*
У житловому комплексі «Супернова», який в районі вулиць Львівської та Потебні у Луцьку зводить Будівельна компанія «Інвестор», стартував продаж та попереднє бронювання квартир в унікальному будинку на шість під’їздів.
Про це пише Перший.
Перші десять двокімнатних квартир продають за акційною ціною: 15 000 гривень за квадрат.
Що таке «великий» будинок?
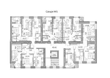
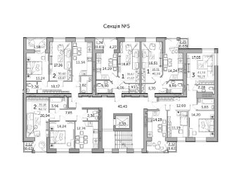
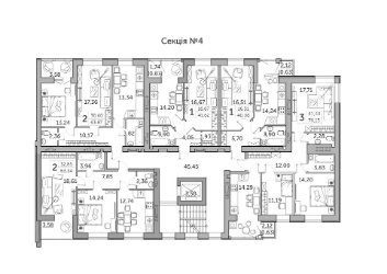
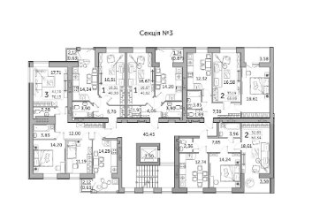
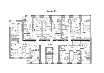
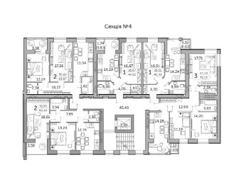
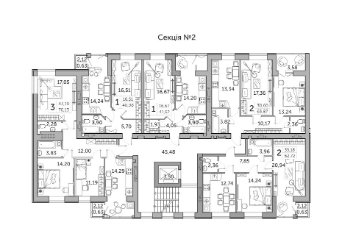
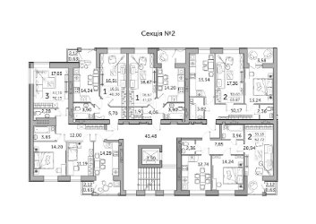
У «Суперновій» заплановано 8 будинків, проте лише один із них – на кілька під’їздів.
У «великому» будинку буде шість під’їздів, на кожному поверсі – по 5 квартир. Тож загалом це – 250 нових квартир.
«Великий» будинок унікальний не лише формою. Тут вперше у «Суперновій» з’являться трикімнатні квартири.
«Найпопулярнішими на ринку нерухомості є двокімнатні квартири, і в перших будинках ми зосередили увагу саме на них. Тим більше, що свої двокімнатні ми спроектували досить великими, такою ж площею, як типові радянські трикімнатні. Але люди, які звертаються, щоб купити квартиру в «Суперновій», часто запитують і про три кімнати, тому ми врахували клієнтський запит і в новому будинку передбачили таку можливість», – розповів директор «Інвестора» Андрій Разумовський.
Крім того, на першому поверсі цього будинку будуть розміщені комерційні приміщення, продаж яких теж розпочався.
«Коли проектуємо будинок, думаємо не про те, скільки заробимо з квадратного метра, а про те, чи буде тут комфортно людям», – так Андрій Разумовський пояснює успіх «Супернової»
Які квартири?
У «великому» будинку заплановані квартири наступними розмірами:
однокімнатні: 40,98 м2; 41,62 м2; 44,19 м2; 45,64 м2
двокімнатні: 62,72 м2; 63,87 м2; 68,83 м2
трикімнатні: 76,13 м2; 76,13 м2; 82,05 м2
В усіх квартирах «Супернової» – стіни із чистовою стяжкою та штукатуркою, автономне опалення (двоконтурні газові котли), «тепла» підлога на кухні та в ванній кімнаті, якісні вікна і вхідні двері.
Скільки коштують?
Із стартом продажів діє спецпропозиція для найактивніших: лише перші 10 квартир – за ціною 15 000 гривень за квадрат. Така акція поширюється на двокімнатні квартири площею 62,72 квадратів і діє лише за умови повної оплати.
Решту квартир (окрім десяти акційних) мають ціну – від 16 000 гривень за квадрат.
Можливі різні варіанти відтермінування залежно від того, у якій секції розташована квартира (за ціною квадратного метра від 16 000 гривень):
1-2 секції – на 24 місяці;
3-4 секції – на 36 місяців;
5-6 секції – 48 місцяів.
При цьому перший внесок – 30%.
Для тих, хто відразу платить більшу суму – від 50% і до 100% – діють знижки.
Дізнатися, як вигідно купити квартиру у «Суперновій» в розстрочку – за посиланням.
Що ще цікавого у «Суперновій»?
На першому поверсі «великого» будинку будуть розташовані заклади, які зможуть повноцінно забезпечити усіх мешканців різними послугами.
Напередодні «Інвестор» провів опитування серед власників квартир про те, що саме потрібно їм для комфортного життя. Орієнтуючись на потреби мешканців, визначили перелік необхідних закладів, які згодом відкриють: продовольчий магазин, кафе, перукарня, спортзал, хімчистка, відділення банку та «Нової пошти». Загалом тут буде розташовано до двох десятків закладів.
Крім того, перед «великим» будинком буде красива алея із зонами відпочинку та фонтанами.
Також на території «Супернової» – сучасний дитячий майданчик, а поруч – ботанічний сад.
Будувати «Супернову» почали рівно три роки тому: у червні 2016 року. Чотири будинки уже зведені, п’ятий – будується. На черзі – «великий» будинок на шість під’їздів.
Нещодавно зняли відео неймовірного світанку над будівельним майданчиком «Супернової»
За більш детальною інформацією звертайтеся у відділ продажу:
Телефон: 096 030 20 10
Адреса: м. Луцьк, вул. Коперника, 13 в; вул. Цегельна, 28
Сайт: www.investor.lutsk.ua
Facebook: facebook.com/investorlutsk
Instagram: bud.investor
Бажаєте дізнаватися головні новини Луцька та Волині першими? Приєднуйтеся до нашого каналу в Telegram!
Про це пише Перший.
Перші десять двокімнатних квартир продають за акційною ціною: 15 000 гривень за квадрат.
Що таке «великий» будинок?
У «Суперновій» заплановано 8 будинків, проте лише один із них – на кілька під’їздів.
У «великому» будинку буде шість під’їздів, на кожному поверсі – по 5 квартир. Тож загалом це – 250 нових квартир.
«Великий» будинок унікальний не лише формою. Тут вперше у «Суперновій» з’являться трикімнатні квартири.
«Найпопулярнішими на ринку нерухомості є двокімнатні квартири, і в перших будинках ми зосередили увагу саме на них. Тим більше, що свої двокімнатні ми спроектували досить великими, такою ж площею, як типові радянські трикімнатні. Але люди, які звертаються, щоб купити квартиру в «Суперновій», часто запитують і про три кімнати, тому ми врахували клієнтський запит і в новому будинку передбачили таку можливість», – розповів директор «Інвестора» Андрій Разумовський.
Крім того, на першому поверсі цього будинку будуть розміщені комерційні приміщення, продаж яких теж розпочався.
«Коли проектуємо будинок, думаємо не про те, скільки заробимо з квадратного метра, а про те, чи буде тут комфортно людям», – так Андрій Разумовський пояснює успіх «Супернової»
Які квартири?
У «великому» будинку заплановані квартири наступними розмірами:
однокімнатні: 40,98 м2; 41,62 м2; 44,19 м2; 45,64 м2
двокімнатні: 62,72 м2; 63,87 м2; 68,83 м2
трикімнатні: 76,13 м2; 76,13 м2; 82,05 м2
В усіх квартирах «Супернової» – стіни із чистовою стяжкою та штукатуркою, автономне опалення (двоконтурні газові котли), «тепла» підлога на кухні та в ванній кімнаті, якісні вікна і вхідні двері.
Скільки коштують?
Із стартом продажів діє спецпропозиція для найактивніших: лише перші 10 квартир – за ціною 15 000 гривень за квадрат. Така акція поширюється на двокімнатні квартири площею 62,72 квадратів і діє лише за умови повної оплати.
Решту квартир (окрім десяти акційних) мають ціну – від 16 000 гривень за квадрат.
Можливі різні варіанти відтермінування залежно від того, у якій секції розташована квартира (за ціною квадратного метра від 16 000 гривень):
1-2 секції – на 24 місяці;
3-4 секції – на 36 місяців;
5-6 секції – 48 місцяів.
При цьому перший внесок – 30%.
Для тих, хто відразу платить більшу суму – від 50% і до 100% – діють знижки.
Дізнатися, як вигідно купити квартиру у «Суперновій» в розстрочку – за посиланням.
Що ще цікавого у «Суперновій»?
На першому поверсі «великого» будинку будуть розташовані заклади, які зможуть повноцінно забезпечити усіх мешканців різними послугами.
Напередодні «Інвестор» провів опитування серед власників квартир про те, що саме потрібно їм для комфортного життя. Орієнтуючись на потреби мешканців, визначили перелік необхідних закладів, які згодом відкриють: продовольчий магазин, кафе, перукарня, спортзал, хімчистка, відділення банку та «Нової пошти». Загалом тут буде розташовано до двох десятків закладів.
Крім того, перед «великим» будинком буде красива алея із зонами відпочинку та фонтанами.
Також на території «Супернової» – сучасний дитячий майданчик, а поруч – ботанічний сад.
Будувати «Супернову» почали рівно три роки тому: у червні 2016 року. Чотири будинки уже зведені, п’ятий – будується. На черзі – «великий» будинок на шість під’їздів.
Нещодавно зняли відео неймовірного світанку над будівельним майданчиком «Супернової»
За більш детальною інформацією звертайтеся у відділ продажу:
Телефон: 096 030 20 10
Адреса: м. Луцьк, вул. Коперника, 13 в; вул. Цегельна, 28
Сайт: www.investor.lutsk.ua
Facebook: facebook.com/investorlutsk
Instagram: bud.investor
Бажаєте дізнаватися головні новини Луцька та Волині першими? Приєднуйтеся до нашого каналу в Telegram!
Якщо Ви зауважили помилку, виділіть її та натисніть Ctrl+Enter для того, щоб повідомити про це редакцію
Коментарі 1
А продаж і бронювання стартувало у великому будинку, який вже збудований ?
Останні новини
У селі на Волині люди в неволі тримали лисеня
25 червня, 2019, 11:26
Трагедія на Волині: у ставку втопилась 1,5-річна дівчинка
25 червня, 2019, 11:09
У «Супернові» стартував продаж та бронювання квартир у «великому» будинку*
25 червня, 2019, 11:07
Нардеп Ігор Лапін приймав громадян: з якими проблемами звертаються лучани
25 червня, 2019, 11:03
На Рівненщині вночі спалили Mercedes депутату
25 червня, 2019, 10:51
