У третьому будинку житлового комплексу, який зводить «Інвестор», продають останні квартири*
У житловому комплексі «Юпітер», який на межі Луцька та села Липини зводить будівельна компанія «Інвестор», завершують монтувати покрівлю третього будинку. До речі, в ньому лишилася на продажі лише три квартири та декілька комерційних приміщень.
На сторінці компанії у Facebook опублікували відеозвіт з будівельного майданчика, – пише Район.Луцьк.
«Коли будівельна компанія «Інвестор» розпочинала кілька років тому будівництво ЖК «Юпітер», то відразу відчула, наскільки потрібним є таке затишне та малоповерхове житло для наших майбутніх клієнтів», - йдеться в коментарі до ролика.
У червні на «Юпітері» велися роботи на двох об’єктах. Так, біля другого будинку завершили класти бруківку, облаштували парковку, сходові клітки. А на третьому будинку завершують облаштування покрівлі та тривають внутрішні електромонтажні роботи.
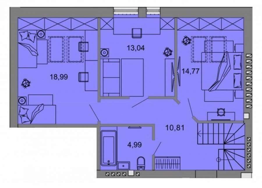
Саме в третьому будинку залишилися на продаж лише три квартири: просторі дворівнені площею 109,34 квадратів та затишна мансардна 60,77 квадратів. Їх можна придбати за хорошою ціною - від 12 000 гривень за квадратний метр.
Якщо Ви хочете купити квартиру в ЖК «Юпітер» або дізнатися більше:
Телефон відділу продажів: 096 030 20 10
Адреса: м. Луцьк, вул. Коперника, 13 в
Сайт: www.investor.lutsk.ua
Facebook: facebook.com/investorlutsk
Instagram: bud.investor
Бажаєте дізнаватися головні новини Луцька та Волині першими? Приєднуйтеся до нашого каналу в Telegram!
На сторінці компанії у Facebook опублікували відеозвіт з будівельного майданчика, – пише Район.Луцьк.
«Коли будівельна компанія «Інвестор» розпочинала кілька років тому будівництво ЖК «Юпітер», то відразу відчула, наскільки потрібним є таке затишне та малоповерхове житло для наших майбутніх клієнтів», - йдеться в коментарі до ролика.
У червні на «Юпітері» велися роботи на двох об’єктах. Так, біля другого будинку завершили класти бруківку, облаштували парковку, сходові клітки. А на третьому будинку завершують облаштування покрівлі та тривають внутрішні електромонтажні роботи.
Саме в третьому будинку залишилися на продаж лише три квартири: просторі дворівнені площею 109,34 квадратів та затишна мансардна 60,77 квадратів. Їх можна придбати за хорошою ціною - від 12 000 гривень за квадратний метр.
Якщо Ви хочете купити квартиру в ЖК «Юпітер» або дізнатися більше:
Телефон відділу продажів: 096 030 20 10
Адреса: м. Луцьк, вул. Коперника, 13 в
Сайт: www.investor.lutsk.ua
Facebook: facebook.com/investorlutsk
Instagram: bud.investor
Бажаєте дізнаватися головні новини Луцька та Волині першими? Приєднуйтеся до нашого каналу в Telegram!
Якщо Ви зауважили помилку, виділіть її та натисніть Ctrl+Enter для того, щоб повідомити про це редакцію
Коментарі 0
Вибір редактора
Останні новини
Правоохоронці розслідуватимуть причини смороду у Луцьку
05 липня, 2019, 16:37
Волинянка, яка 8 років працювала у сільській школі вчителем, стала капітаном поліції
05 липня, 2019, 16:25
У третьому будинку житлового комплексу, який зводить «Інвестор», продають останні квартири*
05 липня, 2019, 16:22
Без паніки: знайшли спосіб врятувати Світязь від обміління*
05 липня, 2019, 16:18
«Укрзалізниця» привітала з днем народження: на дитину впало вікно
05 липня, 2019, 16:16
