Під Луцьком продають простору дворівневу квартиру*
У житловому комплексі «Юпітер», що у Липинах, продається квартира, розташована на четвертому та п’ятому поверхах будинку.
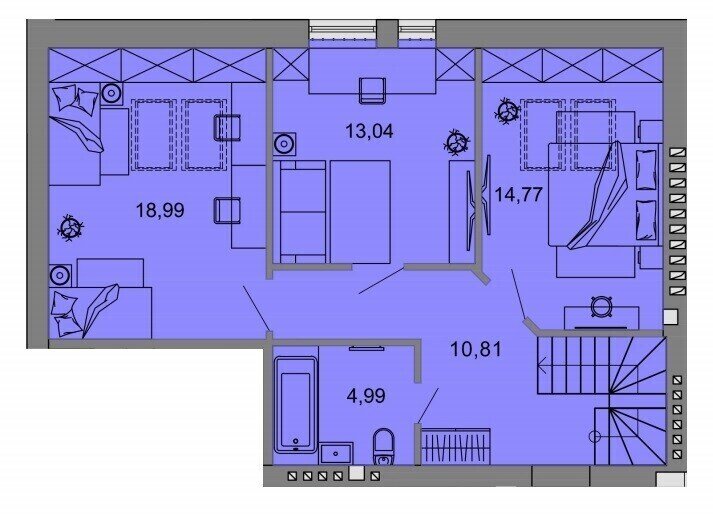
Площа оселі – 109,34 м². Забудовник – Будівельна компанія «Інвестор» – пропонує кілька варіантів оплати, - інформує Перший.
Що за квартира?
Дворівнева квартира має ретельно продумане планування, яке дозволяє комфортно облаштувати простір.
На першому поверсі - вітальня 18,28 м², кухня 9,68 м², санвузол та коридор. Із кухні є вихід на лоджію площею 4,02 м².
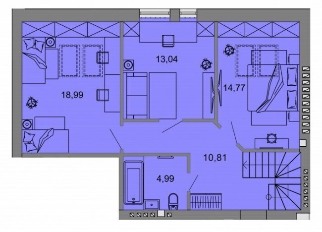
На другому поверсі – три кімнати. Дві з них мансардні, третя – звичайна. Найбільша кімната має площу 18,99 м².
Також на другому поверсі є ще один санвузол та коридор.
Скільки коштує?
Вартість квадратного метра квартири - 12 000 гривень.
Є можливість розтермінування, тоді вартість квадратного метра становитиме 12 500 гривень.
Цікаво подивитися світлини із будівельного майданчика ЖК "Юпітер"? Тисніть на посилання.
Де розташований "Юпітер"?
Житловий комплекс «Юпітер» знаходиться межі села Липини та міста Луцька. Неподалік є зупинка громадського транспорту, а для власників автомобілів передбачили паркомісця. До центру міста можна доїхати за 10-15 хвилин.
Вся територія біля житлового комплексу гарно облаштована. Також є великий дитячий майданчик.
Контакти
Телефон відділу продажів:
096 030 20 10
Адреса:
м. Луцьк, вул. Коперника, 13 в.
Сайт: www.investor.lutsk.ua
Facebook: facebook.com/investorlutsk
Instagram: bud.investor
Бажаєте дізнаватися головні новини Луцька та Волині першими? Приєднуйтеся до нашого каналу в Telegram!
Площа оселі – 109,34 м². Забудовник – Будівельна компанія «Інвестор» – пропонує кілька варіантів оплати, - інформує Перший.
Що за квартира?
Дворівнева квартира має ретельно продумане планування, яке дозволяє комфортно облаштувати простір.
На першому поверсі - вітальня 18,28 м², кухня 9,68 м², санвузол та коридор. Із кухні є вихід на лоджію площею 4,02 м².
На другому поверсі – три кімнати. Дві з них мансардні, третя – звичайна. Найбільша кімната має площу 18,99 м².
Також на другому поверсі є ще один санвузол та коридор.
Скільки коштує?
Вартість квадратного метра квартири - 12 000 гривень.
Є можливість розтермінування, тоді вартість квадратного метра становитиме 12 500 гривень.
Цікаво подивитися світлини із будівельного майданчика ЖК "Юпітер"? Тисніть на посилання.
Де розташований "Юпітер"?
Житловий комплекс «Юпітер» знаходиться межі села Липини та міста Луцька. Неподалік є зупинка громадського транспорту, а для власників автомобілів передбачили паркомісця. До центру міста можна доїхати за 10-15 хвилин.
Вся територія біля житлового комплексу гарно облаштована. Також є великий дитячий майданчик.
Контакти
Телефон відділу продажів:
096 030 20 10
Адреса:
м. Луцьк, вул. Коперника, 13 в.
Сайт: www.investor.lutsk.ua
Facebook: facebook.com/investorlutsk
Instagram: bud.investor
Бажаєте дізнаватися головні новини Луцька та Волині першими? Приєднуйтеся до нашого каналу в Telegram!
Якщо Ви зауважили помилку, виділіть її та натисніть Ctrl+Enter для того, щоб повідомити про це редакцію
Коментарі 0
Вибір редактора
Останні новини
У Володимирі затримали молодика, який розгулював парком з ножем і кастетом
17 липня, 2019, 12:27
Мертві собаки у Луцьку на ЛПЗ: що про це відомо. ВІДЕО
17 липня, 2019, 12:14
Під Луцьком продають простору дворівневу квартиру*
17 липня, 2019, 11:58
У Нововолинську вночі Mercedes збив пішохода: потерпілий – у реанімації
17 липня, 2019, 11:50
У Луцьку депутат пропонує безкоштовно возити всіх у тролейбусах
17 липня, 2019, 11:40
