Найкращі пропозиції купівлі житла у серпні від «Інвестора». ФОТО. ВІДЕО*
Товари за акційною ціною – хороша можливість зробити вигідну покупку. А житло, яке вдається купити зі знижкою – це можливість отримати вигоду у набагато більшому розмірі.
Будівельна компанія «Інвестор» зібрала найцікавіші акції серпня.
1. Таунхаус з гаражем у «Струмочку»
Розташування: ЖК «Струмочок» у с. Струмівка поблизу Луцька
Площа: 127,18 м²
Акційна ціна: $56 000
Умови відтермінування: до червня 2020 року; перший внесок 50% – ціна $57 000, а при 25% – $58 000.
Чому треба купити цей таунхаус?
- разом із будинком отримуєте просторий гараж (21,15 м2). Крім надійного зберігання авто, площа гаражі дозволяє облаштувати зручне технічне приміщення, майстерню тощо;
- тут є три спальні;
- таунхаус має велику терасу та власний дворик;
- таунхаус легше обігрівати, адже з обох боків – сусідське житло, яке теж обігрівається, а не вулиця;
- в таунхаусах краща шумоізоляція, ніж в квартирах, бо з сусідами межує лише одна або дві стіни;
- економія грошей, поки діє акція!
2. Однокімнатна квартира в «Юпітері»
Розташування: ЖК «Юпітер» у с. Липини поблизу Луцька
Площа: 60,77 м²
Акційна ціна: 649 000 гривень
Умови відтермінування: на 12 місяців; перший внесок 50%
Чому треба купувати цю квартиру?
- це – ідеальний варіант для тих, хто хоче жити за містом, але не має коштів на окремий будинок;
- квартира компактна, проте житлова площа дозволяє поділити простір на кілька зон, відділивши місце для сну. Наприклад, за допомогою двостороннього стелажа, шафи-купе, ширми, розсувних дверцят тощо;
- квартира має мансардні вікна, що дозволяє зробити креативний дизайн, а також – краще освітлює площу;
- економія. Вартість квадратного метра виходить близько 10 680 гривень.
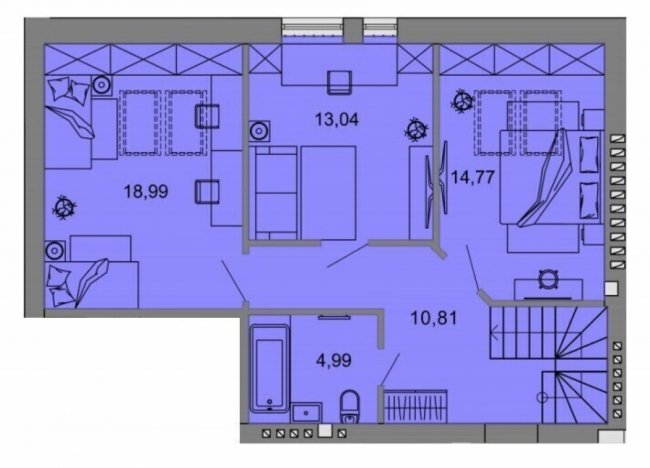
3. Чотирикімнатна квартира у «Юпітері»
Розташування: ЖК «Юпітер» у с. Липини поблизу Луцька
Площа: 109,34 м²
Акційна ціна: $49 000
Умови відтермінування: на 12 місяців; перший внесок 50%
Чому треба купувати цю квартиру?
- квартира – дворівнева, і це дозволить чітко розділити так званий громадський простір від житлового;
- є два входи на кожному поверсі, що зручно, якщо в квартирі планує жити дві сім’ї: батьки і діти;
- є два санвузли;
- із кухні є вихід на лоджію;
- на другому поверсі дві кімнати – мансардні, що дає можливість зробити унікальний дизайн;
- економія.
4. Трикімнатна квартира в «Парковому кварталі»
Розташування: ЖК «Парковий квартал» у Ковелі
Площа: 80,4 м²
Акційна ціна: 11 900 гривень за м2
Умови відтермінування: на 12 місяців; перший внесок – 25% і ціна буде 12 500 гривень за квадрат
Чому треба купувати цю квартиру?
- будинок, у якому продається квартира, незабаром здадуть в експлуатацію, тож купуючи це житло у розстрочку, вдасться зробити ремонт і заселитися ще до повної виплати;
- квартира – дворівнева, тож теж має вище описані переваги із креативним дизайном та розділенням простору;
- в квартирі є два окремі входи, дві лоджії та два санвузли на кожному поверсі;
- житловий комплекс розташований у хорошому районі: тихому і затишному, поруч із зеленими насадженнями, проте – і з розвинутою інфраструктурою;
- економія коштів завдяки акційній ціні.
Дізнатися більше про акційні пропозиції можна за цим посиланням
096 030 20 10
м. Луцьк, вул. Коперника, 13в
Facebook: facebook.com/investorlutsk/
Instagram: bud.investor
Бажаєте дізнаватися головні новини Луцька та Волині першими? Приєднуйтеся до нашого каналу в Telegram!
Будівельна компанія «Інвестор» зібрала найцікавіші акції серпня.
1. Таунхаус з гаражем у «Струмочку»
Розташування: ЖК «Струмочок» у с. Струмівка поблизу Луцька
Площа: 127,18 м²
Акційна ціна: $56 000
Умови відтермінування: до червня 2020 року; перший внесок 50% – ціна $57 000, а при 25% – $58 000.
Чому треба купити цей таунхаус?
- разом із будинком отримуєте просторий гараж (21,15 м2). Крім надійного зберігання авто, площа гаражі дозволяє облаштувати зручне технічне приміщення, майстерню тощо;
- тут є три спальні;
- таунхаус має велику терасу та власний дворик;
- таунхаус легше обігрівати, адже з обох боків – сусідське житло, яке теж обігрівається, а не вулиця;
- в таунхаусах краща шумоізоляція, ніж в квартирах, бо з сусідами межує лише одна або дві стіни;
- економія грошей, поки діє акція!
2. Однокімнатна квартира в «Юпітері»
Розташування: ЖК «Юпітер» у с. Липини поблизу Луцька
Площа: 60,77 м²
Акційна ціна: 649 000 гривень
Умови відтермінування: на 12 місяців; перший внесок 50%
Чому треба купувати цю квартиру?
- це – ідеальний варіант для тих, хто хоче жити за містом, але не має коштів на окремий будинок;
- квартира компактна, проте житлова площа дозволяє поділити простір на кілька зон, відділивши місце для сну. Наприклад, за допомогою двостороннього стелажа, шафи-купе, ширми, розсувних дверцят тощо;
- квартира має мансардні вікна, що дозволяє зробити креативний дизайн, а також – краще освітлює площу;
- економія. Вартість квадратного метра виходить близько 10 680 гривень.
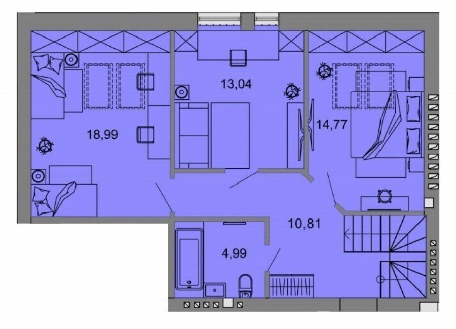
3. Чотирикімнатна квартира у «Юпітері»
Розташування: ЖК «Юпітер» у с. Липини поблизу Луцька
Площа: 109,34 м²
Акційна ціна: $49 000
Умови відтермінування: на 12 місяців; перший внесок 50%
Чому треба купувати цю квартиру?
- квартира – дворівнева, і це дозволить чітко розділити так званий громадський простір від житлового;
- є два входи на кожному поверсі, що зручно, якщо в квартирі планує жити дві сім’ї: батьки і діти;
- є два санвузли;
- із кухні є вихід на лоджію;
- на другому поверсі дві кімнати – мансардні, що дає можливість зробити унікальний дизайн;
- економія.
4. Трикімнатна квартира в «Парковому кварталі»
Розташування: ЖК «Парковий квартал» у Ковелі
Площа: 80,4 м²
Акційна ціна: 11 900 гривень за м2
Умови відтермінування: на 12 місяців; перший внесок – 25% і ціна буде 12 500 гривень за квадрат
Чому треба купувати цю квартиру?
- будинок, у якому продається квартира, незабаром здадуть в експлуатацію, тож купуючи це житло у розстрочку, вдасться зробити ремонт і заселитися ще до повної виплати;
- квартира – дворівнева, тож теж має вище описані переваги із креативним дизайном та розділенням простору;
- в квартирі є два окремі входи, дві лоджії та два санвузли на кожному поверсі;
- житловий комплекс розташований у хорошому районі: тихому і затишному, поруч із зеленими насадженнями, проте – і з розвинутою інфраструктурою;
- економія коштів завдяки акційній ціні.
Дізнатися більше про акційні пропозиції можна за цим посиланням
096 030 20 10
м. Луцьк, вул. Коперника, 13в
Facebook: facebook.com/investorlutsk/
Instagram: bud.investor
Бажаєте дізнаватися головні новини Луцька та Волині першими? Приєднуйтеся до нашого каналу в Telegram!
Якщо Ви зауважили помилку, виділіть її та натисніть Ctrl+Enter для того, щоб повідомити про це редакцію
Коментарі 0
Останні новини
Де на Волині не можна полювати на пернату дичину
08 серпня, 2019, 13:55
Через пожежу на електростанції у частині Луцька немає не лише світла, а й води
08 серпня, 2019, 13:25
Найкращі пропозиції купівлі житла у серпні від «Інвестора». ФОТО. ВІДЕО*
08 серпня, 2019, 13:21
Небайдужі волиняни купили для бійців 14-ої бригади на передову авто
08 серпня, 2019, 12:55
У Луцьку горить електропідстанція: частина міста – без світла. ФОТО
08 серпня, 2019, 12:53
