Які секрети приховує підземелля луцької синагоги. ФОТО
Луцька Велика синагога має одну особливість, яка вирізняє її з ряду собі подібних. Це її військовий бік, який розкривається не тільки наявністю вежі з арсеналом, що її звелів збудувати король, а й наявністю підземель.
Вперше їх стали досліджувати у 1930-х роках, - пишуть Хроніки Любарта.
Зазначають, підказав науковцям наявність підземної частини один з найстарших луцьких мулярів, який певно знав не один секрет міської старовини.
Що взагалі відомо про підземелля Великої синагоги в Луцьку?
Так, у 1930-х роках синагогою зацікавився історик і реставратор, працівник адміністрації Волинського воєводства Збіґнєв Ревський. Він побачив вентиляційні отвори на цоколі споруди і подумав, що вони мали би бути пов’язані з підземеллями. Це заперечували доглядачі божниці, проте один із найстаріших луцьких мулярів підказав, що підземелля там є, але вони вже кілька десятків років замуровані, тому про них ніхто не знає.
Цей випадок історик описав у своїй статті для культурного часопису Znicz, який друкували в Луцьку щомісяця. У ній він пише про відкриття підземель.
Руїни синагоги у 1975. Малюнок Ростислава Метельницького
«Розкопки фундаментів жіночої частини синагоги, яка розташована в синагозі зі сходу, виявили частково зруйновані цегляні сходи ХІХ століття, які вели вниз. Коли розчистили ці сходи від цоколю, збудованого кілька десятків років тому, побачили сліди замурованого отвору з аркоподібним склепінням давнього походження. Після усунення замурівку відкрилася порожнина зі старим склепінням, яке переходило у стіну новішого часу. Після усунення з нижньої частини цієї порожнини землі відкрився перемурований хрещатим склепінням вхід до підземелля, який був замурований більше 50 років.
Ці підземелля, розташовані під жіночою частиною синагоги, доходять до мурів основи вежі, де повертають направо і тягнуться під сіньми споруди, де закінчуються старою мурованою стіною. Широкі підземні коридори, що оточують основний корпус синагоги з південно-східної та південно-західної сторін, покриті бароковими склепіннями. Первинно були освітлені вікнами, які розташовувалися в отворах склепіння. З південно-східного боку затулені цоколем і підвищенням рівня землі з плином століть. В даний час планується вилучити з підземелля сміття і земля, відкрити вікна і відновити спуск.
Факт існування цих підземель викликає цікавість щодо їхнього первинного призначення. Варто сказати, що підземелля під синагогами є рідкісним явищем, не пов’язаним із культовими потребами.
Натомість у ряду знаних дотепер випадків (Київ, Степань, Пінськ, Тикоцин) наявність підземель іде в парі з оборонним характером синагоги. Луцька синагога є, як відомо, одним з кращих прикладів цього типу будівлі, про що свідчать опубліковані привілеї Зиґмунта III з 1626 і 1628 років.
Таким чином, наявні підземелля можна розглядати як ще один фактор оборони синагоги, покладаючись, швидше за все, на те, що ці коридори спочатку мали зв'язок із міською фортифікаційною системою, і мали забезпечити відступ раптово атакованих», - йдеться у статті дослідника.
Зауважують, цей опис Ревського є безумовно дуже цікавим і збуджує уяву, тим більше з огляду на те, що сьогодні про підземелля під синагогою не знають, вони не відкриті і не використовуються як туристичний об’єкт.
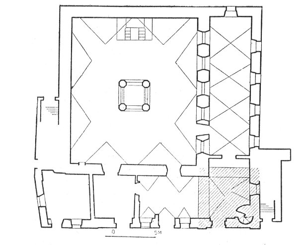
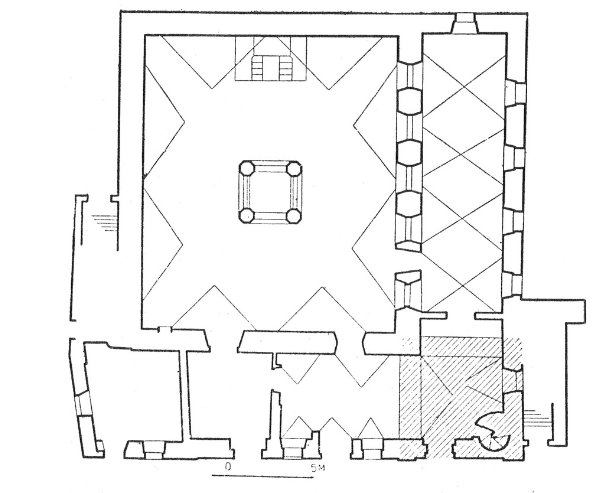
План синагоги. Жіноча частина - справа. З меморіальної книги Sefer Lutsk
Ревський був не єдиним, хто з науковою метою туди потрапив.
Український архітектор і дослідник церковної архітектури Леонід Маслов зробив обміри тих підземель. Він виснував, що нижня частина синагоги була збудована одночасно з верхньою. Отже, будівництво підземель мало усвідомлений характер, а не випадковий.
Більше ніяких описів тих підвалів не було аж до початку 2000-х, коли вийшла друком книжка луцького архітектора Ростислава Метельницького «Деякі сторінки єврейської забудови Луцька», де він описав події 1970-х років.
Ще, правда, був проект консервації синагоги, розроблений у 1950-х роках. Але чи там ішлося щось про підземелля, невідомо.
«Для всіх вони з'явились вже після знищення південно-західної двоповерхової частини споруди, бо знаходились під нею. Їх засипано будівельним сміттям та піском через отвір в склепінні, тепер на цьому місці знаходиться вимощений бетонними плитами підхід до вежі. …Глибина, на якій знаходиться підлога підвалу, невідома. Невідомо також з якої цегли вимуровано ті склепіння і стіни, але склепіння були міцними, бо… витримували вагу бульдозера, що розчищав ділянку.
Маємо два запитання, пов’язані з підвалами. Перше, як вже відзначалось, полягає в тому, що для функціонування синагоги вони не потрібні, і тому виникає підозра, що вони могли колись бути першим поверхом невідомої споруди литовських часів. Однак такому припущенню суперечить факт одночасного будівництва підвалів та башти (в підземній частині вони конструктивно та просторово поєднані).
Другим, поки що настільки ж безперспективним для відповіді запинанням є таке: якщо рівень грунту був в давнину нижче від теперішнього (а це очевидно), то яким чином потрапляли в молитовній зал прихожани, коли відомо, що підлога в ньому традиційно робилась нижче вулиці? Адже між залом та вулицею був підвал, склепіння якого по висоті не узгоджувались ні з одним з цих рівнів. Якщо вхід був на тому ж місці, то як долали висоту склепінь підвалу? Будь-які гіпотетичні варіанти відповідей на ці загинання узгодити не вдається, а це означає, що одне з них або обидва не враховують невідомих нам обставин», - писав Метельницький про підземелля.
Сьогодні Велика синагога перебуває в жахливому стані. Вона відверто занепадає і руйнується. Це пам’ятка національного значення, яка має ключове значень для розуміння розвитку південної частини давнього острівного Луцька і оборонної системи, а про її реставрацію і подальше використання поки навіть не чути.
Бажаєте дізнаватися головні новини Луцька та Волині першими? Приєднуйтеся до нашого каналу в Telegram!
Вперше їх стали досліджувати у 1930-х роках, - пишуть Хроніки Любарта.
Зазначають, підказав науковцям наявність підземної частини один з найстарших луцьких мулярів, який певно знав не один секрет міської старовини.
Що взагалі відомо про підземелля Великої синагоги в Луцьку?
Так, у 1930-х роках синагогою зацікавився історик і реставратор, працівник адміністрації Волинського воєводства Збіґнєв Ревський. Він побачив вентиляційні отвори на цоколі споруди і подумав, що вони мали би бути пов’язані з підземеллями. Це заперечували доглядачі божниці, проте один із найстаріших луцьких мулярів підказав, що підземелля там є, але вони вже кілька десятків років замуровані, тому про них ніхто не знає.
Цей випадок історик описав у своїй статті для культурного часопису Znicz, який друкували в Луцьку щомісяця. У ній він пише про відкриття підземель.
Руїни синагоги у 1975. Малюнок Ростислава Метельницького
«Розкопки фундаментів жіночої частини синагоги, яка розташована в синагозі зі сходу, виявили частково зруйновані цегляні сходи ХІХ століття, які вели вниз. Коли розчистили ці сходи від цоколю, збудованого кілька десятків років тому, побачили сліди замурованого отвору з аркоподібним склепінням давнього походження. Після усунення замурівку відкрилася порожнина зі старим склепінням, яке переходило у стіну новішого часу. Після усунення з нижньої частини цієї порожнини землі відкрився перемурований хрещатим склепінням вхід до підземелля, який був замурований більше 50 років.
Ці підземелля, розташовані під жіночою частиною синагоги, доходять до мурів основи вежі, де повертають направо і тягнуться під сіньми споруди, де закінчуються старою мурованою стіною. Широкі підземні коридори, що оточують основний корпус синагоги з південно-східної та південно-західної сторін, покриті бароковими склепіннями. Первинно були освітлені вікнами, які розташовувалися в отворах склепіння. З південно-східного боку затулені цоколем і підвищенням рівня землі з плином століть. В даний час планується вилучити з підземелля сміття і земля, відкрити вікна і відновити спуск.
Факт існування цих підземель викликає цікавість щодо їхнього первинного призначення. Варто сказати, що підземелля під синагогами є рідкісним явищем, не пов’язаним із культовими потребами.
Натомість у ряду знаних дотепер випадків (Київ, Степань, Пінськ, Тикоцин) наявність підземель іде в парі з оборонним характером синагоги. Луцька синагога є, як відомо, одним з кращих прикладів цього типу будівлі, про що свідчать опубліковані привілеї Зиґмунта III з 1626 і 1628 років.
Таким чином, наявні підземелля можна розглядати як ще один фактор оборони синагоги, покладаючись, швидше за все, на те, що ці коридори спочатку мали зв'язок із міською фортифікаційною системою, і мали забезпечити відступ раптово атакованих», - йдеться у статті дослідника.
Зауважують, цей опис Ревського є безумовно дуже цікавим і збуджує уяву, тим більше з огляду на те, що сьогодні про підземелля під синагогою не знають, вони не відкриті і не використовуються як туристичний об’єкт.
План синагоги. Жіноча частина - справа. З меморіальної книги Sefer Lutsk
Ревський був не єдиним, хто з науковою метою туди потрапив.
Український архітектор і дослідник церковної архітектури Леонід Маслов зробив обміри тих підземель. Він виснував, що нижня частина синагоги була збудована одночасно з верхньою. Отже, будівництво підземель мало усвідомлений характер, а не випадковий.
Більше ніяких описів тих підвалів не було аж до початку 2000-х, коли вийшла друком книжка луцького архітектора Ростислава Метельницького «Деякі сторінки єврейської забудови Луцька», де він описав події 1970-х років.
Ще, правда, був проект консервації синагоги, розроблений у 1950-х роках. Але чи там ішлося щось про підземелля, невідомо.
«Для всіх вони з'явились вже після знищення південно-західної двоповерхової частини споруди, бо знаходились під нею. Їх засипано будівельним сміттям та піском через отвір в склепінні, тепер на цьому місці знаходиться вимощений бетонними плитами підхід до вежі. …Глибина, на якій знаходиться підлога підвалу, невідома. Невідомо також з якої цегли вимуровано ті склепіння і стіни, але склепіння були міцними, бо… витримували вагу бульдозера, що розчищав ділянку.
Маємо два запитання, пов’язані з підвалами. Перше, як вже відзначалось, полягає в тому, що для функціонування синагоги вони не потрібні, і тому виникає підозра, що вони могли колись бути першим поверхом невідомої споруди литовських часів. Однак такому припущенню суперечить факт одночасного будівництва підвалів та башти (в підземній частині вони конструктивно та просторово поєднані).
Другим, поки що настільки ж безперспективним для відповіді запинанням є таке: якщо рівень грунту був в давнину нижче від теперішнього (а це очевидно), то яким чином потрапляли в молитовній зал прихожани, коли відомо, що підлога в ньому традиційно робилась нижче вулиці? Адже між залом та вулицею був підвал, склепіння якого по висоті не узгоджувались ні з одним з цих рівнів. Якщо вхід був на тому ж місці, то як долали висоту склепінь підвалу? Будь-які гіпотетичні варіанти відповідей на ці загинання узгодити не вдається, а це означає, що одне з них або обидва не враховують невідомих нам обставин», - писав Метельницький про підземелля.
Сьогодні Велика синагога перебуває в жахливому стані. Вона відверто занепадає і руйнується. Це пам’ятка національного значення, яка має ключове значень для розуміння розвитку південної частини давнього острівного Луцька і оборонної системи, а про її реставрацію і подальше використання поки навіть не чути.
Бажаєте дізнаватися головні новини Луцька та Волині першими? Приєднуйтеся до нашого каналу в Telegram!
Якщо Ви зауважили помилку, виділіть її та натисніть Ctrl+Enter для того, щоб повідомити про це редакцію
Коментарі 0
Останні новини
Львівські десантники покажуть свою техніку та озброєння у волинських містах
12 серпня, 2019, 21:54
У Луцьку знайшли каналізаційний люк, з якого бурлять нечистоти. ВІДЕО
12 серпня, 2019, 21:27
Які секрети приховує підземелля луцької синагоги. ФОТО
12 серпня, 2019, 20:56
На Волині за минулий тиждень на кір захворіло 8 дітей
12 серпня, 2019, 20:34
ТРЦ «ПортCity» кличе на «Фестиваль професій»*
12 серпня, 2019, 20:17
