Спорт, комфорт і затишок: розповіли, у чому перевага квартир від ЖК «Західний Олімп» під Луцьком*
У новому сучасному житловому комплексі «Західний Олімп», що розташований у передмісті Луцька – селі Тарасове, мешканці почали облаштовувати свої домівки у будинку другої черги відразу після отримання сертифікату відповідності.
Про життя, особливості і переваги житлового комплексу «Західний Олімп» розповіла менеджер центру продажу Руслана Бутова.
Чим ЖК «Західний Олімп» так приваблює покупців
Комплекс, який у майбутньому складатиметься із шести окремих будинків, розташований посеред природи в селі Тарасове. Доїхати до центру Луцька звідси можна за 15 хвилин на маршрутному таксі №31, що курсує від будинків кожні 7-10 хвилин, або ж за 5 хвилин на власному автомобілі.
Інфраструктура «Олімпу» також відіграє важливу роль у виборі помешкання саме тут, адже поруч – зупинка маршруту 31,дитячий садочок і церква, трішки далі – база відпочинку та сучасна лікарня.
Максимально комфортні умови намагаються створити і на самій території житлового комплексу, де дбають про спокійне та якісне життя домовласників ще від самого початку будівництва.
Для мешканців облаштували унікальний дитячий майданчик з гойдалками та ігрову зону для тенісу, баскетболу, футболу чи волейболу. Сучасне покриття, якісні і безпечні атракції для діток – запорука здорового життя у комплексі «Західний Олімп». Забудовники переконують, що комфорт мешканців – основний орієнтир, саме тому вони намагаються створити на території затишну і максимально домашню атмосферу.
Не забули і про озеленення території комплексу. Для любителів красивих рослин тут створили справжній рай. Уже встигли висадити декілька десятків рясно-зелених і жовтогарячих туй, сріблястих і козацьких ялівців, кущових ялин, а особливість і гордість «зеленої» зони – декоративні дерева бонсай, а ще поруч із комплексом «Заборольська ОТГ» виділила близько 15 «соток» під сквер так , що «зелений рай» гарантовано!
Охорона, автоматичні ліхтарі і ОСББ: ЖК «Олімп» зсередини
Не менш важливим аспектом у виборі майбутнього помешкання є безпека, у ЖК «Західний Олімп» про це подбали сповна. Уся територія знаходиться під постійним відеонаглядом, а під’їхати до комплексу можна тільки через систему зі шлагбаумом, де невдовзі облаштують і пункт охорони.
До слова ОСББ, яка відповідає за порядок, у двох будинках вже функціонує, з вересня туди долучать і третю новобудову, тож жодних проблем із систематичним вивозом сміття і прибиранням території немає.
Комплекс – не маленький, зовсім скоро будуватимуть уже четвертий будинок, але це жодним чином не впливає на якість життя в «Олімпі».
До того ж, для комфорту автовласників тут передбачили достатньо паркомісць, а на території створили спеціальну розмітку із «зебрами» і вказівниками.
Освітлення у «Олімпі» зробили також по-особливому. Сучасні ліхтарі вмикаються автоматично, також є додаткове освітлення, аби мешканці могли гуляти територією чи відпочивати на спортивному і дитячому майданчику навіть уночі.
ЖК «Західний Олімп» – це комплексність і комфорт
Наразі здані в експлуатацію вже є три будинки. На цокольному поверсі перших двох будинків незабаром планують відкрити перукарню, магазин, масажний кабінет, аптеку та швейну майстерню. «Усе для комфорту мешканців. Ми хочемо створити тут усі умови для максимально автономного життя, тож передусім – якість і комплексність», – зазначає Руслана Бутова.
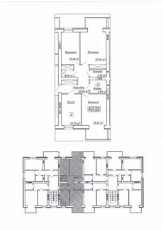
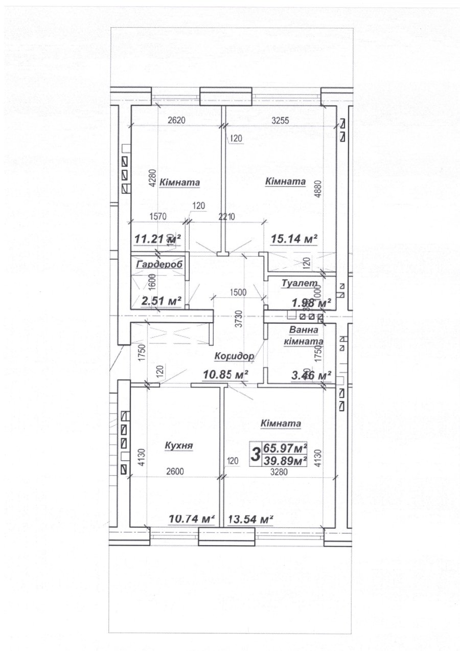
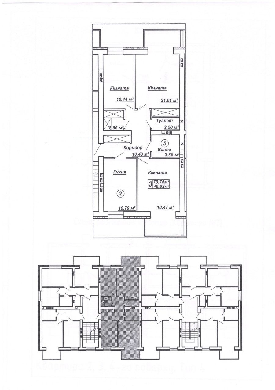
Ціни на квартири у житловому комплексі «Західний Олімп» не надто «кусають» гаманець, не дивлячись на унікальність помешкання. Акційну трикімнатну квартиру на 66 «квадратів» можна придбати за ціною 13,500 гривень за м2. Однокімнатна на другому на 39 «квадратів» обійдеться у 15,500 гривень за м2. Якщо вартість квартири оплачувати відразу, то гарантують знижки, також пропонують взяти помешкання у розстрочку, коли 50% від вартості квартири у зданому будинку вносять відразу, а іншу частку виплачують протягом року без надбавки за квадратні метри. Унікальною пропозицією ЖК «Західний Олімп» є здача квартир під ключ або ж повний ремонт помешкання за співпраці із найкращими майстрами міста. Ціновий діапазон та терміни ремонту вирішують безпосередньо із клієнтом.
Бажаєте дізнаватися головні новини Луцька та Волині першими? Приєднуйтеся до нашого каналу в Telegram!
Про життя, особливості і переваги житлового комплексу «Західний Олімп» розповіла менеджер центру продажу Руслана Бутова.
Чим ЖК «Західний Олімп» так приваблює покупців
Комплекс, який у майбутньому складатиметься із шести окремих будинків, розташований посеред природи в селі Тарасове. Доїхати до центру Луцька звідси можна за 15 хвилин на маршрутному таксі №31, що курсує від будинків кожні 7-10 хвилин, або ж за 5 хвилин на власному автомобілі.
Інфраструктура «Олімпу» також відіграє важливу роль у виборі помешкання саме тут, адже поруч – зупинка маршруту 31,дитячий садочок і церква, трішки далі – база відпочинку та сучасна лікарня.
Максимально комфортні умови намагаються створити і на самій території житлового комплексу, де дбають про спокійне та якісне життя домовласників ще від самого початку будівництва.
Для мешканців облаштували унікальний дитячий майданчик з гойдалками та ігрову зону для тенісу, баскетболу, футболу чи волейболу. Сучасне покриття, якісні і безпечні атракції для діток – запорука здорового життя у комплексі «Західний Олімп». Забудовники переконують, що комфорт мешканців – основний орієнтир, саме тому вони намагаються створити на території затишну і максимально домашню атмосферу.
Не забули і про озеленення території комплексу. Для любителів красивих рослин тут створили справжній рай. Уже встигли висадити декілька десятків рясно-зелених і жовтогарячих туй, сріблястих і козацьких ялівців, кущових ялин, а особливість і гордість «зеленої» зони – декоративні дерева бонсай, а ще поруч із комплексом «Заборольська ОТГ» виділила близько 15 «соток» під сквер так , що «зелений рай» гарантовано!
Охорона, автоматичні ліхтарі і ОСББ: ЖК «Олімп» зсередини
Не менш важливим аспектом у виборі майбутнього помешкання є безпека, у ЖК «Західний Олімп» про це подбали сповна. Уся територія знаходиться під постійним відеонаглядом, а під’їхати до комплексу можна тільки через систему зі шлагбаумом, де невдовзі облаштують і пункт охорони.
До слова ОСББ, яка відповідає за порядок, у двох будинках вже функціонує, з вересня туди долучать і третю новобудову, тож жодних проблем із систематичним вивозом сміття і прибиранням території немає.
Комплекс – не маленький, зовсім скоро будуватимуть уже четвертий будинок, але це жодним чином не впливає на якість життя в «Олімпі».
До того ж, для комфорту автовласників тут передбачили достатньо паркомісць, а на території створили спеціальну розмітку із «зебрами» і вказівниками.
Освітлення у «Олімпі» зробили також по-особливому. Сучасні ліхтарі вмикаються автоматично, також є додаткове освітлення, аби мешканці могли гуляти територією чи відпочивати на спортивному і дитячому майданчику навіть уночі.
ЖК «Західний Олімп» – це комплексність і комфорт
Наразі здані в експлуатацію вже є три будинки. На цокольному поверсі перших двох будинків незабаром планують відкрити перукарню, магазин, масажний кабінет, аптеку та швейну майстерню. «Усе для комфорту мешканців. Ми хочемо створити тут усі умови для максимально автономного життя, тож передусім – якість і комплексність», – зазначає Руслана Бутова.
Ціни на квартири у житловому комплексі «Західний Олімп» не надто «кусають» гаманець, не дивлячись на унікальність помешкання. Акційну трикімнатну квартиру на 66 «квадратів» можна придбати за ціною 13,500 гривень за м2. Однокімнатна на другому на 39 «квадратів» обійдеться у 15,500 гривень за м2. Якщо вартість квартири оплачувати відразу, то гарантують знижки, також пропонують взяти помешкання у розстрочку, коли 50% від вартості квартири у зданому будинку вносять відразу, а іншу частку виплачують протягом року без надбавки за квадратні метри. Унікальною пропозицією ЖК «Західний Олімп» є здача квартир під ключ або ж повний ремонт помешкання за співпраці із найкращими майстрами міста. Ціновий діапазон та терміни ремонту вирішують безпосередньо із клієнтом.
Бажаєте дізнаватися головні новини Луцька та Волині першими? Приєднуйтеся до нашого каналу в Telegram!
Якщо Ви зауважили помилку, виділіть її та натисніть Ctrl+Enter для того, щоб повідомити про це редакцію
Коментарі 0
Останні новини
Повідомили, коли у Луцьку можуть побудувати фонтан за 14 мільйонів гривень
28 серпня, 2019, 12:45
Медики розповіли, коли на Волинь прийде епідемія грипу
28 серпня, 2019, 12:40
Спорт, комфорт і затишок: розповіли, у чому перевага квартир від ЖК «Західний Олімп» під Луцьком*
28 серпня, 2019, 12:37
У мера Луцька – новий заступник
28 серпня, 2019, 12:34
У луцькій поліклініці – черги в кабінети щеплень. ВІДЕО
28 серпня, 2019, 12:24






