У місті на Волині знесуть будівлю історичного значення
У проекті так званої реконструкції центрального парку у Ковелі не знайшлося місця історичному музею.
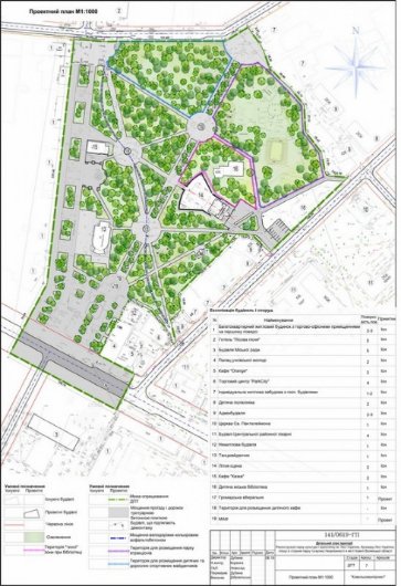
Ковельська міська рада офіційно оприлюднила детальний план реконструкції парку культури і відпочинку імені Лесі Українки, - пише Район. Ковель.
За задумом проектантів, будівлю історичного музею мають знести, який у ці дні відзначає своє 30-річчя.
Зазначають, музей буде, але у будівлі колишнього РАЦСу на вулиці Степана Бандери.
Також знесуть фонтан, який після реконструкції у 2003 році за рахунок бюджету розвитку міста став справжньою окрасою Ковеля.
Натомість новий пішохідний фонтан збудують неподалік, на площі. За фонтаном передбачають місце для новорічної ялинки, яку, очевидно, звідкись пересадять.
В інше місце перенесуть пам’ятник Лесі Українці.
Бажаєте дізнаватися головні новини Луцька та Волині першими? Приєднуйтеся до нашого каналу в Telegram!
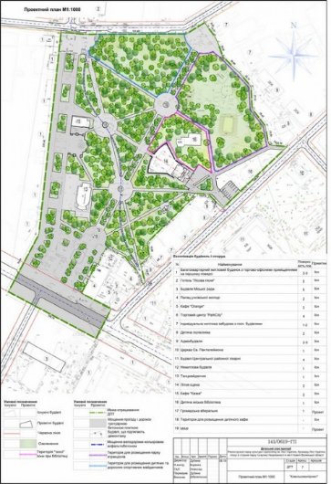
Ковельська міська рада офіційно оприлюднила детальний план реконструкції парку культури і відпочинку імені Лесі Українки, - пише Район. Ковель.
За задумом проектантів, будівлю історичного музею мають знести, який у ці дні відзначає своє 30-річчя.
Зазначають, музей буде, але у будівлі колишнього РАЦСу на вулиці Степана Бандери.
Також знесуть фонтан, який після реконструкції у 2003 році за рахунок бюджету розвитку міста став справжньою окрасою Ковеля.
Натомість новий пішохідний фонтан збудують неподалік, на площі. За фонтаном передбачають місце для новорічної ялинки, яку, очевидно, звідкись пересадять.
В інше місце перенесуть пам’ятник Лесі Українці.
Бажаєте дізнаватися головні новини Луцька та Волині першими? Приєднуйтеся до нашого каналу в Telegram!
Якщо Ви зауважили помилку, виділіть її та натисніть Ctrl+Enter для того, щоб повідомити про це редакцію
Коментарі 1
Краще не зносили а зробили музей м.Ковель
Останні новини
Конкурс різьбярів у Луцьку: «боротьба» з бензопилами триває. ФОТО
23 серпня, 2019, 21:22
Під Луцьком модернізують електромережі
23 серпня, 2019, 20:58
У місті на Волині знесуть будівлю історичного значення
23 серпня, 2019, 20:44
У селі на Волині амбулаторію збудують майже за 5 мільйонів гривень
23 серпня, 2019, 20:18
На Волині зловили «чорних лісорубів». ФОТО
23 серпня, 2019, 20:10
