Житловий тренд: чи потрібні лучанам «розумні» квартири*
Одним із трендів в житловій нерухомості є раціональне використання простору квартири, ефективне та функціональне планування, необхідне для задоволення потреб сучасної людини.
Smart (розумна)-квартира – це оптимально продумана житлова площа під ваші вимоги. У цій квартирі немає «роздутих метражів», «довгих коридорів», кожен метр використовується раціонально з метою забезпечити комфортні умови проживання всіх членів сім'ї.
Основні плюси Smart-квартир:
1. Продуманість кожного квадратного метра – вбудовані меблі та побутова техніка (варильна поверхня, витяжка, пральна машина, стільці, ліжко та інше).
2. Мінімізація площі коридорів та об'єднання функціональних зон за принципом квартири-студії.
3. Відсутність «мертвих» ділянок в кімнатах, що не приносять власникам функціоналу.
4. Чітке зонування простору: місце для відпочинку, прийняття їжі, гігієни, сну, індивідуальний простір.
5. І основне – доступність купівлі Smart–квартир широким верствам населення. Хороша альтернатива орендованому житлу.
Щоб створити «розумне» планування, потрібно дотриматися головних правил: перетворити кухню та вітальню в єдиний житловий простір, заздалегідь скласти список необхідної техніки. Ретельно продумати місця для зберігання своїх речей. Обирати функціональні мінімалістичні меблі. Важливо підібрати відповідний стиль інтер'єру, щоб не зробити простір меншим. Найкраще підійдуть стилі лофт, мінімалізм і хай-тек. Також важливими у цьому є кольори: теплі і яскраві відтінки будуть більш актуальними.
Smart-квартири вже стали популярними в Києві, Львові, Дніпрі, Одесі. Споживачі бачать переваги такого вкладення коштів.
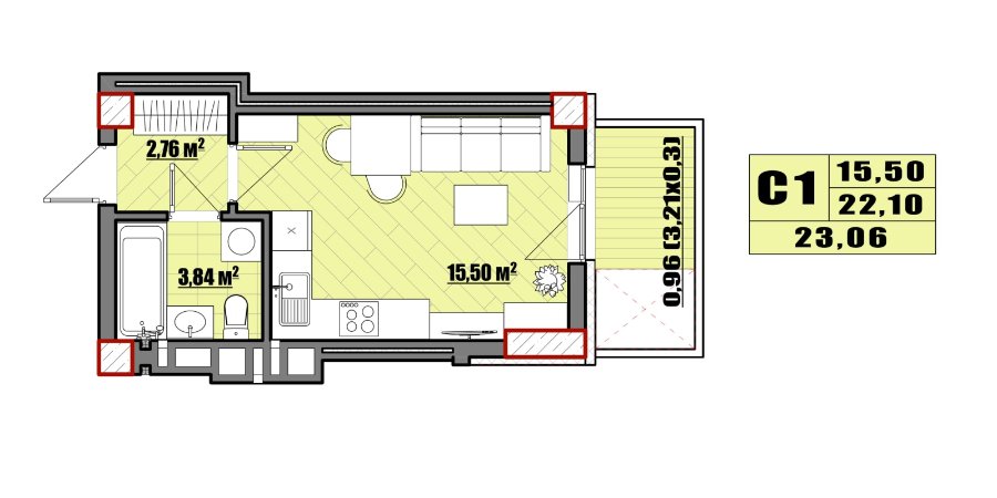
У Луцьку DREAM TOWN – перший житловий комплекс, що пропонуватиме «розумне» планування. Цей тип планувань буде використаний у третьому будинку комплексу. На вибір площі 26–33 м2. Мешканці Smart-квартир матимуть розвинену інфраструктуру, що передбачає наявність дитячих майданчиків, магазинів, підземного паркінгу, кімнат для зберігання візочків, велосипедів, зон для відпочинку, власний дитячий садочок.
Забудовника цікавить думка лучан з приводу такого житла.
«Як ви вважаєте, у нашому місті стануть популярними Smart-квартири? Чи вирішить це питання доступності житла? Та чи є достатнім для комфортного життя 26 м2? Чи мінімально має бути 33 м2? Чекаємо коментарів та відгуків на досить актуальне питання. Телефонуйте 099 327 27 27», – закликає забудовник, звертаючись до лучан.
Бажаєте дізнаватися головні новини Луцька та Волині першими? Приєднуйтеся до нашого каналу в Telegram!
Smart (розумна)-квартира – це оптимально продумана житлова площа під ваші вимоги. У цій квартирі немає «роздутих метражів», «довгих коридорів», кожен метр використовується раціонально з метою забезпечити комфортні умови проживання всіх членів сім'ї.
Основні плюси Smart-квартир:
1. Продуманість кожного квадратного метра – вбудовані меблі та побутова техніка (варильна поверхня, витяжка, пральна машина, стільці, ліжко та інше).
2. Мінімізація площі коридорів та об'єднання функціональних зон за принципом квартири-студії.
3. Відсутність «мертвих» ділянок в кімнатах, що не приносять власникам функціоналу.
4. Чітке зонування простору: місце для відпочинку, прийняття їжі, гігієни, сну, індивідуальний простір.
5. І основне – доступність купівлі Smart–квартир широким верствам населення. Хороша альтернатива орендованому житлу.
Щоб створити «розумне» планування, потрібно дотриматися головних правил: перетворити кухню та вітальню в єдиний житловий простір, заздалегідь скласти список необхідної техніки. Ретельно продумати місця для зберігання своїх речей. Обирати функціональні мінімалістичні меблі. Важливо підібрати відповідний стиль інтер'єру, щоб не зробити простір меншим. Найкраще підійдуть стилі лофт, мінімалізм і хай-тек. Також важливими у цьому є кольори: теплі і яскраві відтінки будуть більш актуальними.
Smart-квартири вже стали популярними в Києві, Львові, Дніпрі, Одесі. Споживачі бачать переваги такого вкладення коштів.
У Луцьку DREAM TOWN – перший житловий комплекс, що пропонуватиме «розумне» планування. Цей тип планувань буде використаний у третьому будинку комплексу. На вибір площі 26–33 м2. Мешканці Smart-квартир матимуть розвинену інфраструктуру, що передбачає наявність дитячих майданчиків, магазинів, підземного паркінгу, кімнат для зберігання візочків, велосипедів, зон для відпочинку, власний дитячий садочок.
Забудовника цікавить думка лучан з приводу такого житла.
«Як ви вважаєте, у нашому місті стануть популярними Smart-квартири? Чи вирішить це питання доступності житла? Та чи є достатнім для комфортного життя 26 м2? Чи мінімально має бути 33 м2? Чекаємо коментарів та відгуків на досить актуальне питання. Телефонуйте 099 327 27 27», – закликає забудовник, звертаючись до лучан.
Бажаєте дізнаватися головні новини Луцька та Волині першими? Приєднуйтеся до нашого каналу в Telegram!
Якщо Ви зауважили помилку, виділіть її та натисніть Ctrl+Enter для того, щоб повідомити про це редакцію
Коментарі 1
33 кв для одної людини може вистачить.. але на мою думку, такі квартири більше підходять під здачу в оренду.
Останні новини
У Луцьку із лабораторії викрали оргтехніку
13 грудня, 2019, 12:34
У селищі на Волині у кота виявили сказ
13 грудня, 2019, 12:30
Житловий тренд: чи потрібні лучанам «розумні» квартири*
13 грудня, 2019, 12:15
Знайшли водія, який збив на смерть 22-річного велосипедиста під Луцьком
13 грудня, 2019, 12:12
У луцькому пивному клубі встановлять рекорд України
13 грудня, 2019, 12:06
