«Супернова» пропонує вигідні пропозиції для покупців: розсторочка на 4 роки.* ВІДЕО
Житловий комплекс «Супернова», який в Луцьку зводить будівельна компанія «Інвестор» в районі вулиць Львівської та Потебні, пропонує покупцям надзвичайні умови купівлі квартир у розстрочку, а саме можливість відтермінування на 4 роки!
Про це повідомляє Перший.
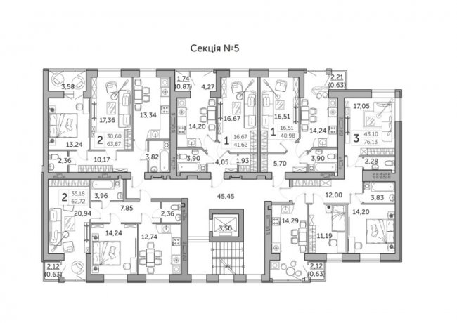
Відомо, загалом у цьому житловому комплексі заплановали 8 будинків, проте лише один із них – на кілька під’їздів.
Які умови супервідтермінування?
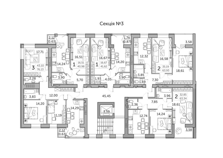
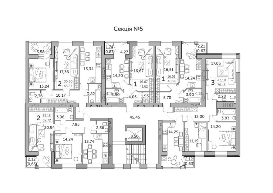
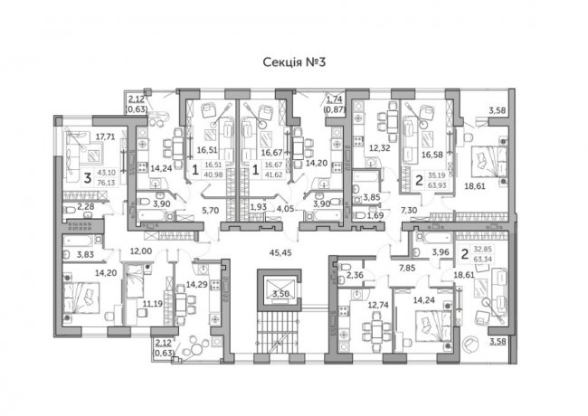
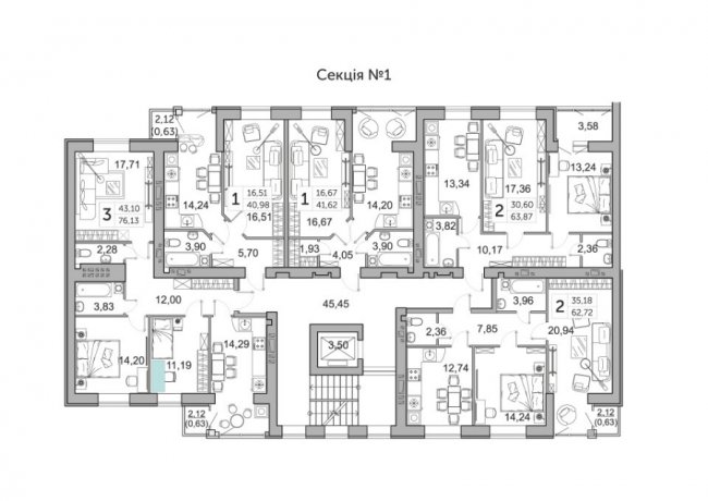
У «великому» будинку буде шість під’їздів, на кожному поверсі – по 5 квартир.
Повідомляють, залежно від того, в якому під’їзді купувати житло, є можливість відтермінування платежів від двох до чотирьох років:
1-2 секції: відтермінування – до червня 2021 року, ціна – від 15 000 гривень
3-4 секції: відтермінування – до червня 2022 року, ціна – від 15 000 гривень
5-6 секції: відтермінування – до червня 2023 року, ціна – 17 000 гривень
Наприклад, якщо покупця цікавить двокімнатна квартира площею 62,72 м2 з максимально можливим відтермінування. Тобто – це буде квартира у 5 чи 6 секціях. Перший внесок 30 % складе $12 300. Далі щомісяця до червня 2023 року доведеться сплачувати по 15 880 гривень (або $610).
Крім цього є цікаві акційні пропозиції. Наприклад, перші 10 двокімнатних квартир у «Суперновій» при повній оплаті продають за вартістю квадрата – 15 000 гривень, при розтермінуванні і першому внеску 30 % – 16 000 гривень.
Чим особливий «великий» будинок?
«Великий» будинок унікальний не лише формою. Тут вперше у «Суперновій» з’являться трикімнатні квартири.
У «великому» будинку заплановані квартири розмірами:
однокімнатні: 40,98 м2; 41,62 м2; 44,19 м2; 45,64 м2
двокімнатні: 62,72 м2; 63,87 м2; 68,83 м2
трикімнатні: 76,13 м2; 76,13 м2; 82,05 м2
В усіх квартирах «Супернової» – стіни із чистовою стяжкою та штукатуркою, автономне опалення (двоконтурні газові котли), «тепла» підлога на кухні та в ванній кімнаті, якісні вікна і вхідні двері.
Зазначають, мешканці «Супернової» уже мають можливість щодня милуватися неймовірними сходами та заходами сонця. Хочете перевірити, чи справді це особлива краса?
За більш детальною інформацією звертайтеся у відділ продажу:
Телефон: 096 030 20 10
Адреса: м. Луцьк, вул. Коперника, 13 в; вул. Цегельна, 28
Сайт: www.investor.lutsk.ua
Facebook: facebook.com/investorlutsk
Instagram: bud.investor
Бажаєте дізнаватися головні новини Луцька та Волині першими? Приєднуйтеся до нашого каналу в Telegram!
Про це повідомляє Перший.
Відомо, загалом у цьому житловому комплексі заплановали 8 будинків, проте лише один із них – на кілька під’їздів.
Які умови супервідтермінування?
У «великому» будинку буде шість під’їздів, на кожному поверсі – по 5 квартир.
Повідомляють, залежно від того, в якому під’їзді купувати житло, є можливість відтермінування платежів від двох до чотирьох років:
1-2 секції: відтермінування – до червня 2021 року, ціна – від 15 000 гривень
3-4 секції: відтермінування – до червня 2022 року, ціна – від 15 000 гривень
5-6 секції: відтермінування – до червня 2023 року, ціна – 17 000 гривень
Наприклад, якщо покупця цікавить двокімнатна квартира площею 62,72 м2 з максимально можливим відтермінування. Тобто – це буде квартира у 5 чи 6 секціях. Перший внесок 30 % складе $12 300. Далі щомісяця до червня 2023 року доведеться сплачувати по 15 880 гривень (або $610).
Крім цього є цікаві акційні пропозиції. Наприклад, перші 10 двокімнатних квартир у «Суперновій» при повній оплаті продають за вартістю квадрата – 15 000 гривень, при розтермінуванні і першому внеску 30 % – 16 000 гривень.
Чим особливий «великий» будинок?
«Великий» будинок унікальний не лише формою. Тут вперше у «Суперновій» з’являться трикімнатні квартири.
У «великому» будинку заплановані квартири розмірами:
однокімнатні: 40,98 м2; 41,62 м2; 44,19 м2; 45,64 м2
двокімнатні: 62,72 м2; 63,87 м2; 68,83 м2
трикімнатні: 76,13 м2; 76,13 м2; 82,05 м2
В усіх квартирах «Супернової» – стіни із чистовою стяжкою та штукатуркою, автономне опалення (двоконтурні газові котли), «тепла» підлога на кухні та в ванній кімнаті, якісні вікна і вхідні двері.
Зазначають, мешканці «Супернової» уже мають можливість щодня милуватися неймовірними сходами та заходами сонця. Хочете перевірити, чи справді це особлива краса?
За більш детальною інформацією звертайтеся у відділ продажу:
Телефон: 096 030 20 10
Адреса: м. Луцьк, вул. Коперника, 13 в; вул. Цегельна, 28
Сайт: www.investor.lutsk.ua
Facebook: facebook.com/investorlutsk
Instagram: bud.investor
Бажаєте дізнаватися головні новини Луцька та Волині першими? Приєднуйтеся до нашого каналу в Telegram!
Якщо Ви зауважили помилку, виділіть її та натисніть Ctrl+Enter для того, щоб повідомити про це редакцію
Коментарі 0
Останні новини
Усіх – з відпусток і на «посилений режим»: як поліція Волині готується до виборів
09 липня, 2019, 13:50
В Україні за добу по-звірячому зґвалтували трьох дітей
09 липня, 2019, 13:37
«Супернова» пропонує вигідні пропозиції для покупців: розсторочка на 4 роки.* ВІДЕО
09 липня, 2019, 13:22
Переломи та укуси тварин: скільки пацієнтів відвідали луцьку лікарню на вихідних
09 липня, 2019, 13:16
Повідомили, на чому «погоріли» партії і кандидати в нардепи на Волині
09 липня, 2019, 13:13
