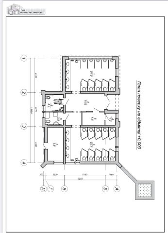
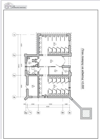
Показали, який вигляд матиме громадська вбиральня у луцькому парку. ФОТО
У Центральний парк культури і відпочинку імені Лесі Українки невдовзі з`явиться громадська вбиральня.
Про це на своїй сторінці у фейсбуці написав радник Луцького міського голови Ігор Поліщук.
"Якщо запитати лучан стосовно того, чого найбільше не вистачає в Центральному парку, найчастіше лунає відповідь про необхідність облаштувати нормальну, чисту й комфортну громадську вбиральню, адаптовану для потреб людей з інвалідністю та з пеленальною кімнатою для мам. Саме таку на наше замовлення розробили проектанти, тож плануємо облаштувати її у парку вже цього року, адже вже дуже багато років лучани в парку не можуть скористатися елементарними зручностями, помити руки і т.д", - йдеться у дописі.
Бажаєте дізнаватися головні новини Луцька та Волині першими? Приєднуйтеся до нашого каналу в Telegram!
Про це на своїй сторінці у фейсбуці написав радник Луцького міського голови Ігор Поліщук.
"Якщо запитати лучан стосовно того, чого найбільше не вистачає в Центральному парку, найчастіше лунає відповідь про необхідність облаштувати нормальну, чисту й комфортну громадську вбиральню, адаптовану для потреб людей з інвалідністю та з пеленальною кімнатою для мам. Саме таку на наше замовлення розробили проектанти, тож плануємо облаштувати її у парку вже цього року, адже вже дуже багато років лучани в парку не можуть скористатися елементарними зручностями, помити руки і т.д", - йдеться у дописі.
Бажаєте дізнаватися головні новини Луцька та Волині першими? Приєднуйтеся до нашого каналу в Telegram!
Якщо Ви зауважили помилку, виділіть її та натисніть Ctrl+Enter для того, щоб повідомити про це редакцію
Коментарі 0
Останні новини
На заводі авіаобладнання у Хмельницькому виготовили апарат штучної вентиляції легенів
06 травня, 2020, 23:34
У Луцьку протестом під будівлею СБУ підтримали Сергія Стерненка. ФОТО
06 травня, 2020, 23:01
Показали, який вигляд матиме громадська вбиральня у луцькому парку. ФОТО
06 травня, 2020, 22:13
Волинський лікар очолив Центр трансплантології у Львові. ФОТО
06 травня, 2020, 21:37
Відвідувачів луцьких парків хочуть убезпечити від кліщів
06 травня, 2020, 21:18
