У Луцьку ріжуть дерева, аби збудувати церкву. ФОТО
На території поблизу парку на 40 кварталі Луцька, поблизу університету «Україна» готують площу для будівництва храму УПЦ Московського патріархату.
Тут тривають роботи з облаштування території під забудову: вирубують дерева та встановлюють паркан.
«Ми 10 років чекали на те, щоб отримати цю територію і розпочати будівництво храму. Тепер ми, нарешті, її отримали. У нас є всі необхідні документи, які дозволяють почати будівництво, зокрема, дозвіл на зрубування дерев на території під забудову, дозвіл на початок будівельних робіт» - говорить настоятель храму протоієрей Володимир Літвенчук.
Після облаштування, територію освятять і розпочнуть будівництво храму, каже священик.
Окрім того, священик повідомив: уже двічі – у ніч на середу, 26 та на четвер, 27 червня невідомі нищили сітчату металеву огороджу. Працівники ставили нову.
«Я не знаю, хто це міг зробити, можливо у когось є свої інтереси на цю територію», - Володимир Літвенчук.
До цього прихожани церкви протягом десяти років збирались у приміщенні Волинського шовкового комбінату, що на вул. Карбишева. Де є спеціально облаштована кімната, яка ледве вміщує сотню людей.
«Всі ці роки церква функціонувала в цьому маленькому приміщенні. На Трійцю тут теж проводилось богослужіння, прийшло багато людей, було дуже тісно і спекотно. В таких умовах ми живемо з початку 2000-х, як тільки відкрили це приміщення», - розповідає настоятель храму.
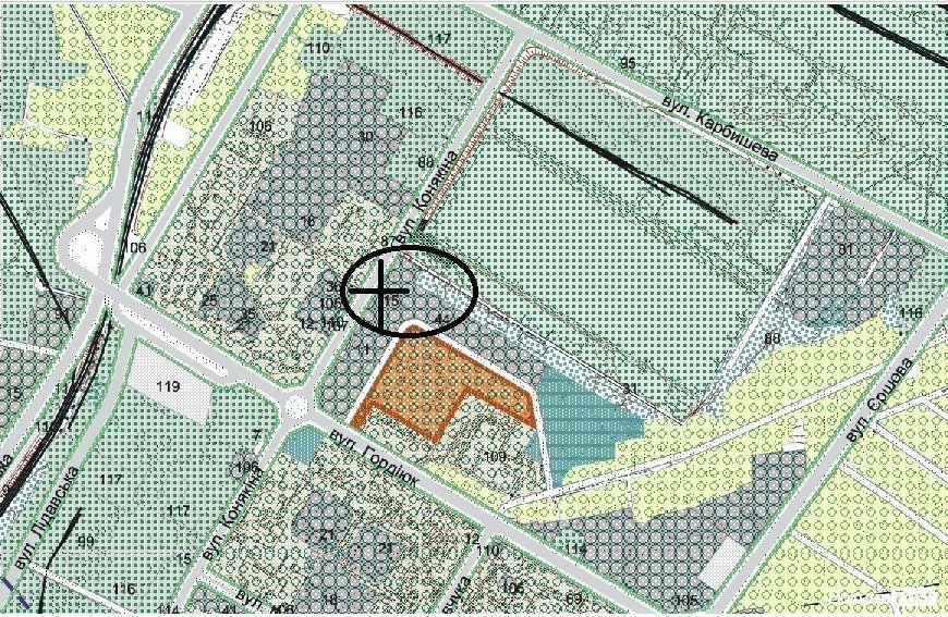
Територія будівництва займає 0,467 гектара. Площа майбутнього храму - 12x12 м. Церква уже й має адресу: вул. Конякіна, 1-В.
Священик демонструє документи і переконує, що будівництво ведеться з дотриманням усіх норм і правил.
До слова, у відносній близькості до місця будівництва цієї церкви храм з такою ж назвою будує громада УПЦ Київського патріархату. Це будівництво триває уже 5-й рік.
Заступник головного архітектора міста Ярослав Матвіїв запевняє, що церква буде зводитися не на території парку.
«Згідно зі старим і новим генеральними планами ця територія є місцем громадської забудови. Це не є територія парку, тому ми погодили зведення там храму. Хоча раніше, коли ще функціонував Волинський шовковий комбінат, будь-яке будівництво на тій території було забороненим», - розповів Ярослав Матвіїв.
Настоятель храму запевняє: хоч спочатку працівники і вимушені були зрізати дерева на місці будівництва, зате потім територію облагородять. «Коли храм врешті збудують, ми облагородимо територію навколо: посадимо невисокі туї і прокладемо доріжки», - запевняє настоятель храму.
Бажаєте дізнаватися головні новини Луцька та Волині першими? Приєднуйтеся до нашого каналу в Telegram!
Тут тривають роботи з облаштування території під забудову: вирубують дерева та встановлюють паркан.
«Ми 10 років чекали на те, щоб отримати цю територію і розпочати будівництво храму. Тепер ми, нарешті, її отримали. У нас є всі необхідні документи, які дозволяють почати будівництво, зокрема, дозвіл на зрубування дерев на території під забудову, дозвіл на початок будівельних робіт» - говорить настоятель храму протоієрей Володимир Літвенчук.
Після облаштування, територію освятять і розпочнуть будівництво храму, каже священик.
Окрім того, священик повідомив: уже двічі – у ніч на середу, 26 та на четвер, 27 червня невідомі нищили сітчату металеву огороджу. Працівники ставили нову.
«Я не знаю, хто це міг зробити, можливо у когось є свої інтереси на цю територію», - Володимир Літвенчук.
До цього прихожани церкви протягом десяти років збирались у приміщенні Волинського шовкового комбінату, що на вул. Карбишева. Де є спеціально облаштована кімната, яка ледве вміщує сотню людей.
«Всі ці роки церква функціонувала в цьому маленькому приміщенні. На Трійцю тут теж проводилось богослужіння, прийшло багато людей, було дуже тісно і спекотно. В таких умовах ми живемо з початку 2000-х, як тільки відкрили це приміщення», - розповідає настоятель храму.
Територія будівництва займає 0,467 гектара. Площа майбутнього храму - 12x12 м. Церква уже й має адресу: вул. Конякіна, 1-В.
Священик демонструє документи і переконує, що будівництво ведеться з дотриманням усіх норм і правил.
До слова, у відносній близькості до місця будівництва цієї церкви храм з такою ж назвою будує громада УПЦ Київського патріархату. Це будівництво триває уже 5-й рік.
Заступник головного архітектора міста Ярослав Матвіїв запевняє, що церква буде зводитися не на території парку.
«Згідно зі старим і новим генеральними планами ця територія є місцем громадської забудови. Це не є територія парку, тому ми погодили зведення там храму. Хоча раніше, коли ще функціонував Волинський шовковий комбінат, будь-яке будівництво на тій території було забороненим», - розповів Ярослав Матвіїв.
Настоятель храму запевняє: хоч спочатку працівники і вимушені були зрізати дерева на місці будівництва, зате потім територію облагородять. «Коли храм врешті збудують, ми облагородимо територію навколо: посадимо невисокі туї і прокладемо доріжки», - запевняє настоятель храму.
Бажаєте дізнаватися головні новини Луцька та Волині першими? Приєднуйтеся до нашого каналу в Telegram!
Якщо Ви зауважили помилку, виділіть її та натисніть Ctrl+Enter для того, щоб повідомити про це редакцію
Коментарі 36

була ця церква монгольською, так і залишилась.
а московський митрополит сидів в одрі і цілував хана в одне місце
щодо канонічності - в свій час вселенського патріарха в константинополі вигнали саме за те, що він взяв хабаря від московитів, ліквідував митрополію в києві і переніс її до московії. читайте книжки і не пишіть плітки, які гонять ваші московськи попи.
а ви краще поцікавтесь, коли і за що виганяли партіархів в константинополі)))
Загальна статистика: не визначилися з конфесією 27% та невіруючі, невизначені щодо релігії 34%, у сумі 61%.
Отже на волині орієнтовно 634430 віруючих.
Кількість церков - 1572.
на одну церуву перепадає 403 людини.
частка тих, хто відвідує служби серед віруючих УГКЦ (36%), серед вірних УПЦ таких 16%, серед віруючих УПЦ-КП – 12%. Примітно, що серед віруючих обох православних Церков більшість (і майже однакові частки – 54-55%) становлять ті, хто відвідує служби тільки на релігійні свята.
баранів не так багато...щоб будувати стільки церков.
а тепер і дерев =(
15 травня 2009, 18:35
Будувати храм по вулиці Конякіна, що в обласному центрі Волині, не дозволять ні УПЦ, ні УПЦ (КП). Таке рішення одноголосно підтримали усі дев’ять членів тимчасово створеної у міськраді комісії щодо вирішення конфлікту по будівництву двох церков, – інформує 15 травня репортер «Волинських Новин».
Члени комісії по черзі заслухали представників УПЦ (КП) та УПЦ, їхню мотивацію та аргументи щодо будівництва храму. Першою висловила свою позицію сторона Київського патріархату.
За словами її представників, релігійна громада була зареєстрована у 2000 році і саме з тих пір йшлося про виділення земельної ділянки під будівництво храму. Якщо громада УПЦ була зареєстрована пізніше, то ми маємо більше права претендувати на ділянку, – мовили вони. У 2005 році розпочалися збори усіх документів. Наразі уже, за гроші громади, зроблені усі висновки, акти обстеження. В загальному на всі процедури витрачено приблизно 15 тисяч гривень. «А зараз стидно в очі людям дивитися, треба було не давати почати», – обурювалися представники УПЦ (КП).
Члени УПЦ, які виступали другими, також висловили свою позицію. Вони розповіли, що їхня громада була зареєстрована 2001 року і також одразу від неї йшла мова про виділення землі. Проте, за словами представників УПЦ, ними принципово не було вказано, де саме має постати храм, а сама міська рада запропонувала вулицю Конякіна, де парк. З того часу збиралися й опрацьовувалися документи, на які витрачено приблизно 10 тисяч гривень грошей громади.
До слова, також запросили людину, яка особисто підписувала громадам документи, – заступника директора департаменту містобудування, головного художника міста Ярослава Матвіїва. Пан Матвіїв розповів, за часів Кривицького (колишнього Луцького міського голови – «ВН») було прийнято рішення дати дозвіл на будівництво двох храмів. Ділянка Київського патріархату була кращою і розташовувалася поблизу Апеляційного суду, – зауважив пан Матвіїв. Проте пізніше суд захотів розширюватися і «шановні депутати тихенько проголосували, відібрали ту земельну ділянку для храму Івана Предтечі і дали суду», – сказав свідок подій. «Через те це все й почалося», – додав він.
Окрім того, під час засідання комісії йшлося й про те, що кожен із патріархатів має у Луцьку як зведені, так і ще розпочаті й недобудовані церкви. В УПЦ (КП) працюючих виявилося 9, а в УПЦ – 12 храмів.
На вулиці Конякіна, згідно з містобудівним обґрунтуванням, не може розміщуватися дві церкви, а надавати право на будівництво комусь одному – теж несправедливо. Врешті, після більш як півторагодинної дискусії, члени комісії одноголосно вирішили рекомендувати нікому не надавати права на будівництво, аби не розпалювати міжконфесійних конфліктів. Натомість на сесію міськради рекомендовано внести зміни у містобудівну документацію, і з метою збереження скверу на Конякіна заборонити будівництво храмів.
Нагадаємо, конфлікт між двома Церквами \"виплив на поверхню\" під час сесії Луцької міськради 25 березня.