Синагоги Волині: Млинів
У 1795 році Млинів (районний центр на Рівненщині за 35 кілометрів від Луцька, - ред.) стає селом Волинського намісництва, а в 1797 році – Дубенського повіту Подільської губернії Російської імперії, а з 1804 року – Волинської.
Восени 1920 року Млинів у черговий раз захопили польські війська. За Ризьким мирним договором він відійшов до Польщі. Під польською адміністрацією прискорились подальший занепад Млинова й скорочення його населення. 1921 року в містечку налічувалось 185 будинків із загальною кількістю населення 1263 чоловіка.
Відомо, що в Млинові проживали представники різних національностей. Зважаючи на те, що в кінці ХІХ – початку ХХ століття в Млинові була розвинута торгівля та ремесла, то відсоток єврейського населення був значний. Розповіді старожилів підтверджують цей факт.
Раніше Інформаційне агентство ВолиньPost розповідало про те, що в містечку знаходиться могила равина Аарона ІІ Перлова. Проте є ще одна цікава постать пов’язана з населеним пунктом, яка варта уваги.
Виявляться в 1846 році в хасидській родині Млинова Волинської губернії народився письменник Соломон Манделькерн. В Млинові він отримав релігійну освіту, рано втратив батька та переїхав до сусіднього міста Дубно. Маючи сім'ю, вступив у Віленське рабинське училище, звідти перейшов в житомирське, а потім закінчив два факультети: східних мов в Петербурзі та юридичний - в Одесі, за кордоном диплом доктора філософії.
Пробувши кілька років (1873-80) помічником громадського рабина в Одесі, оселився в Лейпцигу, де і прожив до самої смерті. Манделькерн вважається одним з кращих стилістів в єврейській літературі, поетом і автором видатних наукових праць.
Головна праця Манделькерна, яка принесла йому світову славу, - конкорданції (перелік в алфавітному порядку всіх слів, які перебувають в книзі, з зазначенням місця, де вони знаходяться) до Біблії.
Ще одним фактом проживання значної кількості єврейського населення є побудова великої синагоги в Млинові. Під час Другої світової війни євреїв з Млинова вивезли до гетто. Відомо, що в самому Млинові гетто не було.
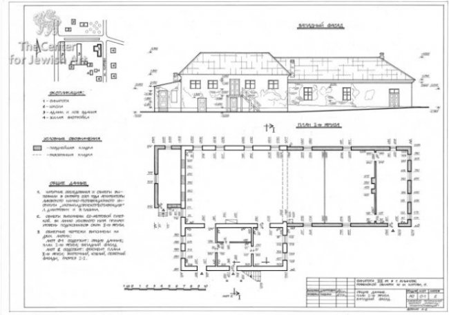
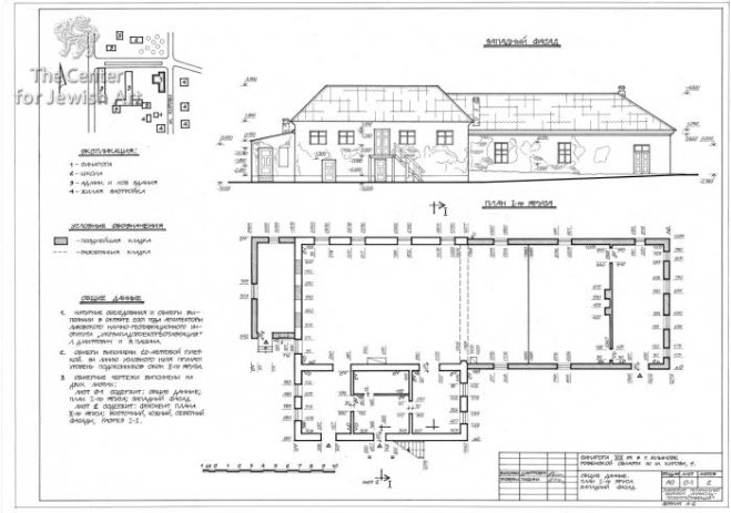
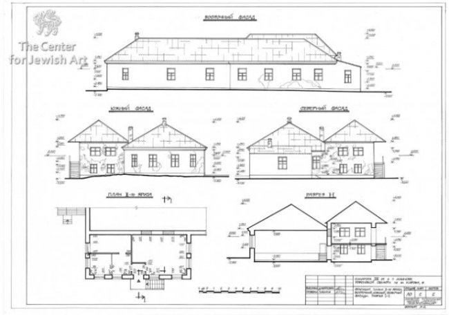
Будівля млинівської синагоги розташована в центральній частині сучасного міста. Обстеження будівлі засвідчують, що зведена вона орієнтовно була в кінці ХІХ – на початку ХХ століття. В післявоєнний час будівля була переобладнана під спортивний зал дитячої спортивної школи.
Від початку будівля синагоги складалась із кількох приміщень: чоловічого та жіночого. Дві частини синагоги відрізнялись між собою, одна було одноярусна, а друга двоярусна. Головний вхід в будівлю розташований із західної сторони одноярусної частини синагоги. Над ним розташований вхід до приміщення, яке було облаштоване для жінок.
Традиційно в кожній синагозі є так звана «мехіца» (поділ, огорожа, межа,) - бар'єр, що розділяє чоловічу і жіночу частини в синагогах, згідно з вимогами. У ролі мехіци може також виступати балкон, стіна, невисока огорожа або завіса.
Після Другої світової війни до будівлі синагоги було прибудовано кілька господарських приміщень спортивної школи з південної та північної сторін.
Стіни синагоги викладені з цегли розміром 30 х 14 х 7. Вперше цеглу такого розміру почали використовувати ще в XVI столітті, її завезли італійці, чим замінили візантійську плінфу. Така цегла важила орієнтовно 8 кг одна цеглина. Перегородки в синагозі на першому ярусі теж виконані із кладки цеглин. Перегородки мають товщину – 30 см. На другому ярусі вони дерев’яні, їх товщина 14-15 см. Первісний вигляд будівлі мав Г-подібну форму.
Декоративні елементи відсутні, фасад будівлі не відрізняється від міської забудови Млинова тих часів.
Сьогодні ця будівля - пустка і розташована на вулиці Покровській. Раніше в ній була спортивна школа.
ЧИТАТИ ПРО СИНАГОГИ КОВЕЛЯ
Фото - The Center of Jewish Art
Текст - Тетяна Яцечко-Блаженко
Бажаєте дізнаватися головні новини Луцька та Волині першими? Приєднуйтеся до нашого каналу в Telegram! Також за нашим сайтом можна стежити у Twitter та Instagram.
Восени 1920 року Млинів у черговий раз захопили польські війська. За Ризьким мирним договором він відійшов до Польщі. Під польською адміністрацією прискорились подальший занепад Млинова й скорочення його населення. 1921 року в містечку налічувалось 185 будинків із загальною кількістю населення 1263 чоловіка.
Відомо, що в Млинові проживали представники різних національностей. Зважаючи на те, що в кінці ХІХ – початку ХХ століття в Млинові була розвинута торгівля та ремесла, то відсоток єврейського населення був значний. Розповіді старожилів підтверджують цей факт.
Раніше Інформаційне агентство ВолиньPost розповідало про те, що в містечку знаходиться могила равина Аарона ІІ Перлова. Проте є ще одна цікава постать пов’язана з населеним пунктом, яка варта уваги.
Виявляться в 1846 році в хасидській родині Млинова Волинської губернії народився письменник Соломон Манделькерн. В Млинові він отримав релігійну освіту, рано втратив батька та переїхав до сусіднього міста Дубно. Маючи сім'ю, вступив у Віленське рабинське училище, звідти перейшов в житомирське, а потім закінчив два факультети: східних мов в Петербурзі та юридичний - в Одесі, за кордоном диплом доктора філософії.
Пробувши кілька років (1873-80) помічником громадського рабина в Одесі, оселився в Лейпцигу, де і прожив до самої смерті. Манделькерн вважається одним з кращих стилістів в єврейській літературі, поетом і автором видатних наукових праць.
Головна праця Манделькерна, яка принесла йому світову славу, - конкорданції (перелік в алфавітному порядку всіх слів, які перебувають в книзі, з зазначенням місця, де вони знаходяться) до Біблії.
Ще одним фактом проживання значної кількості єврейського населення є побудова великої синагоги в Млинові. Під час Другої світової війни євреїв з Млинова вивезли до гетто. Відомо, що в самому Млинові гетто не було.
Будівля млинівської синагоги розташована в центральній частині сучасного міста. Обстеження будівлі засвідчують, що зведена вона орієнтовно була в кінці ХІХ – на початку ХХ століття. В післявоєнний час будівля була переобладнана під спортивний зал дитячої спортивної школи.
Від початку будівля синагоги складалась із кількох приміщень: чоловічого та жіночого. Дві частини синагоги відрізнялись між собою, одна було одноярусна, а друга двоярусна. Головний вхід в будівлю розташований із західної сторони одноярусної частини синагоги. Над ним розташований вхід до приміщення, яке було облаштоване для жінок.
Традиційно в кожній синагозі є так звана «мехіца» (поділ, огорожа, межа,) - бар'єр, що розділяє чоловічу і жіночу частини в синагогах, згідно з вимогами. У ролі мехіци може також виступати балкон, стіна, невисока огорожа або завіса.
Після Другої світової війни до будівлі синагоги було прибудовано кілька господарських приміщень спортивної школи з південної та північної сторін.
Стіни синагоги викладені з цегли розміром 30 х 14 х 7. Вперше цеглу такого розміру почали використовувати ще в XVI столітті, її завезли італійці, чим замінили візантійську плінфу. Така цегла важила орієнтовно 8 кг одна цеглина. Перегородки в синагозі на першому ярусі теж виконані із кладки цеглин. Перегородки мають товщину – 30 см. На другому ярусі вони дерев’яні, їх товщина 14-15 см. Первісний вигляд будівлі мав Г-подібну форму.
Декоративні елементи відсутні, фасад будівлі не відрізняється від міської забудови Млинова тих часів.
Сьогодні ця будівля - пустка і розташована на вулиці Покровській. Раніше в ній була спортивна школа.
ЧИТАТИ ПРО СИНАГОГИ КОВЕЛЯ
Фото - The Center of Jewish Art
Текст - Тетяна Яцечко-Блаженко
Бажаєте дізнаватися головні новини Луцька та Волині першими? Приєднуйтеся до нашого каналу в Telegram! Також за нашим сайтом можна стежити у Twitter та Instagram.
Якщо Ви зауважили помилку, виділіть її та натисніть Ctrl+Enter для того, щоб повідомити про це редакцію
Коментарі 3
Зараз реально розуміеш за шо з ними це робили!
Цікаво)
Зараз реально розуміеш за шо з вами це роблять!
Останні новини
Раз в тиждень приїжджає «магазин на колесах»: у селі Сваловичі проживає всього 10 людей
Сьогодні, 21:15
Степана Гігу поховають у Львові: дата прощання
Сьогодні, 20:39
Якою буде погода у Луцьку та на Волині завтра, 14 грудня
Сьогодні, 20:00
На луцькому ринку – шалені ціни на продукти
Сьогодні, 18:06
